47 Brunswick Ave Metuchen, NJ 08840 / 2601

Residence for Single Family

(UPDATED: 08/10/2025)
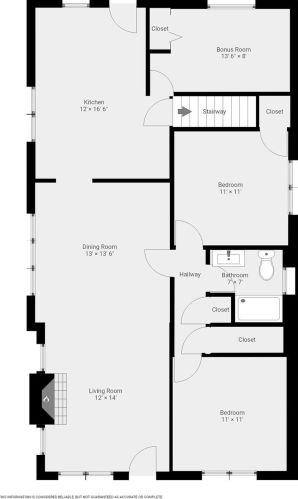
  • 3 Beds
  • 2 Baths
  • 9.448 square feet
Sold May 2023
$551,000
Property Report

Information about property on 47 Brunswick Ave, Metuchen NJ, 08840-2601. Find out owner contacts, building history, price, neighborhood at Homemetry Address Directory.

Property Details

The Cape Cod style two-story single-family estate is situated at 47 Brunswick Avenue, Metuchen, NJ.

Facts

  • Lot size 9,448 sqft
  • Stories 2
  • Structure type Cape cod
  • Exterior Home Features
  • Exterior material Wood
  • Parking & Garage
  • Parking Garage - Detached, 2 spaces
Advertisement
Continue Reading Below

Misc

  • Units 1

Householders and Tenants for 47 Brunswick Ave, Metuchen NJ

Advertisement
Continue Reading Below

Where is 47 Brunswick Ave, Metuchen NJ located on map?

Market Activities

To date, we have no information about market activities in 2025
May 2023 Sold
47 Brunswick Ave
Price history :
  • Single Family
  • 1,440 sqft
  • 3 beds
  • 2 baths
Mar 2023 Sold
47 Brunswick Ave
Price history :
  • Single Family
  • 1,440 sqft
  • 3 beds
  • 2 baths

View more

Brunswick Ave Incidents registered in FEMA
(Federal Emergency Management Agency)

To date, we have no information about incidents registered in FEMA in 2025
17 Nov 2012 Gas leak (natural gas or LPG)
Property Use —
1 or 2 family dwelling
07 Sep 2006 Chemical spill or leak
Property Use —
High school/junior high school/middle school
07 May 2002 Bomb scare - no bomb
Property Use —
High school/junior high school/middle school
05 Nov 2001 Central station, malicious false alarm
Property Use —
High school/junior high school/middle school

View more

Properties Nearby

Street Address
14 Brunswick Ave, Metuchen, NJ 08840-2602
Single Family
  • Lot: 5,998 sqft
21 Brunswick Ave, Metuchen, NJ 08840-2601
Single Family
  • 5 beds
  • 4 baths
  • Lot: 5,998 sqft
23 Brunswick Ave, Metuchen, NJ 08840-2601
Single Family
  • Lot: 5,998 sqft
25 Brunswick Ave, Metuchen, NJ 08840-2601
Single Family
  • 3 beds
  • 2 baths
  • Lot: 5,998 sqft
  • Built in 1920
26 Brunswick Ave, Metuchen, NJ 08840-2602
Single Family
  • Lot: 10,498 sqft
41 Brunswick Ave, Metuchen, NJ 08840-2601
Single Family
  • Lot: 0.25 acres
58 Brunswick Ave, Metuchen, NJ 08840-2602
Single Family
  • Lot: 9,448 sqft
 

FAQ about the house at 47 Brunswick Ave, Metuchen, NJ

Advertisement

NOTICE: You may not use Homemetry or the information it provides to make decisions about employment, credit, housing or any other purpose that would require Fair Credit Reporting Act (FCRA) compliance. Homemetry is not a Consumer Reporting Agency (CRA) as defined by the FCRA and does not provide consumer reports.