82 Louise Rd, Boston MA  02467-1914 exterior

82 Louise Rd Boston, MA 02467 / 1914

Residence for Single Family

(UPDATED: 08/14/2025)
  • 6 Beds
  • 4.680 square feet
Property Report

Information about property on 82 Louise Rd, Boston MA, 02467-1914. Find out owner contacts, building history, price, neighborhood at Homemetry Address Directory.

Property Details

Constructed in 1963, this property has approximately forty-seven hundred square feet of effective area and sits on 0,2 acres.

Facts

  • Built in 1963
  • Property use Two Family
  • Lot size 8,749 sqft
  • Effective area 4,680 sqft
  • Building type Residential
  • Bedrooms 6
  • Stories 2
  • Exterior condition Average
  • Trim None
  • Foundation type Concrete
  • Roof material Asphalt Shingl
  • Fuel type Oil
  • Air conditioning Unit/AC
  • Frontage 105 feet
  • Basement area 1,472 sqft
  • Porch area 20 sqft
  • Enclosed porch area 244 sqft
  • Heating & Cooling
  • Heat type Hot Wtr Radiat
  • Exterior Home Features
  • Exterior walls Brick Veneer
  • Roof type Hip
Advertisement
Continue Reading Below

Features

  • Interior condition: Good

Householders and Tenants for 82 Louise Rd, Boston MA

Possible Businesses

Organization Phone Number Additional Info
Yara Natural Stone Inc
Industry:
Mfg Cut Stone/Products
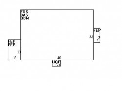
82 Louise Rd, Boston MA  02467-1914 plot plan 82 Louise Rd, Boston MA  02467-1914 floor plan 82 Louise Rd, Boston MA  02467-1914 aerial view

Cost estimate history

YearAssessment
2016 $803,600
2015 $751,000
2014 $717,100
2013 $717,100
2012 $717,100
2011 $729,400
2010 $744,300
2009 $783,500
2008 $783,500
2007 $778,000
2006$755,300
2005$733,300
2004$638,400
2003$560,000
2002$560,000
2001$485,100
2000$443,000
1999$403,100
1998$392,700
1997$370,500
1996$352,900
1995$346,800
1994$346,800
1993$346,800
1992$347,600
Advertisement
Continue Reading Below

Where is 82 Louise Rd, Boston MA located on map?

Properties Nearby

Street Address
 

FAQ about the house at 82 Louise Rd, Boston, MA

Advertisement

NOTICE: You may not use Homemetry or the information it provides to make decisions about employment, credit, housing or any other purpose that would require Fair Credit Reporting Act (FCRA) compliance. Homemetry is not a Consumer Reporting Agency (CRA) as defined by the FCRA and does not provide consumer reports.