Cost estimate history
| Year | Assessment | ||
|---|---|---|---|
| 2016 | $478,600 | ||
| 2015 | $447,300 | ||
| 2014 | $425,500 | ||
| 2013 | $425,500 | ||
| 2012 | $425,500 | ||
| 2011 | $422,400 | ||
| 2010 | $431,000 | ||
| 2009 | $439,800 | ||
| 2008 | $439,800 | ||
| 2007 | $508,200 | ||
| 2006 | $493,400 | ||
| 2005 | $469,900 | ||
| 2004 | $437,200 | ||
| 2003 | $390,400 | ||
| 2002 | $390,400 | ||
| 2001 | $300,100 | ||
| 2000 | $274,100 | ||
| 1999 | $249,400 | ||
| 1998 | $218,900 | ||
| 1997 | $218,900 | ||
| 1996 | $208,500 | ||
| 1995 | $221,700 | ||
| 1994 | $217,400 | ||
| 1993 | $217,400 | ||
| 1992 | $226,600 |
Advertisement
Continue Reading Below
Building Permits
To date, we have no information about building permits in 2025
Dec 2, 2010
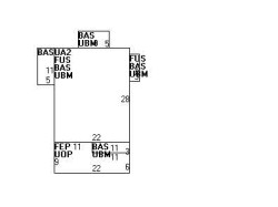
Description: Add 3'x 3' x 12' deep footer pad, 4' deep with new or existing 3" lolly column to new 6"x10" p.t. or lbl beam - see drawing
- Valuation: $650,000
- Fee: $120.90 paid to City of Newton, Massachusetts
- Parcel #: 41019 0018
- Permit #: 10120054
Owatonna St Incidents registered in FEMA
(Federal Emergency Management Agency)
To date, we have no information about incidents registered in FEMA in 2025
31 May 2003
EMS call, excluding vehicle accident with injury
Property Use —
1 or 2 family dwelling
Properties Nearby
| Street Address |
|---|
8 Owatonna St, Newton, MA 02466-1411 Single Family
|
14 Owatonna St, Newton, MA 02466-1411 Single Family
|
15 Owatonna St, Newton, MA 02466-1410 Single Family
|
18 Owatonna St, Newton, MA 02466-1411 Single Family
|
19 Owatonna St, Newton, MA 02466-1410 Single Family
|
22 Owatonna St, Newton, MA 02466-1411 Single Family
|
26 Owatonna St, Newton, MA 02466-1411 Single Family
|
27 Owatonna St, Newton, MA 02466-1410 Single Family
|
33 Owatonna St, Newton, MA 02466-1410 Single Family
|
34 Owatonna St, Newton, MA 02466-1411 Single Family
|


