107 Oliver Rd Newton, MA 02468 / 2307

Residence for Single Family

(UPDATED: 09/23/2025)
  • 3 Beds
  • 1 Baths
  • 3.607 square feet
Sold Jun 2022
$1,390,000
Property Report

Information about property on 107 Oliver Rd, Newton MA, 02468-2307. Find out owner contacts, building history, price, neighborhood at Homemetry Address Directory.

Property Details

This property with near twenty-six hundred square feet of effective area on about a fourth of acre was constructed in the forties.

Facts

  • Built in 1940
  • Property use Single Family
  • Lot size 11,282 sqft
  • Effective area 2,576 sqft
  • Gross building area 3,607 sqft
  • Building type Residential
  • Rooms 9
  • Bedrooms 3
  • Stories 1
  • Exterior condition Average
  • Trim Half Wall
  • Foundation type Concrete
  • Roof material Asphalt Shingl
  • Fuel type Oil
  • Air conditioning Unit/AC
  • Frontage 190 feet
  • Basement area 1,695 sqft
  • Finished basement area 664 sqft
  • Enclosed porch area 25 sqft
  • Deck area 192 sqft
  • Basement garages 2
  • Heating & Cooling
  • Heat type Hot Wtr Radiat
  • Exterior Home Features
  • Exterior walls Vinyl Siding
  • Roof type Gable
Advertisement
Continue Reading Below

Features

  • Kitchen quality: Above Average

Householders and Tenants for 107 Oliver Rd, Newton MA

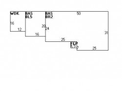
107 Oliver Rd, Newton MA  02468-2307 plot plan 107 Oliver Rd, Newton MA  02468-2307 floor plan 107 Oliver Rd, Newton MA  02468-2307 aerial view

Cost estimate history

YearAssessment
2016 $688,700
2015 $615,400
2014 $585,900
2013 $585,900
2012 $585,900
2011 $564,300
2010 $575,800
2009 $587,500
2008 $587,500
2007 $611,900
2006$545,000
2005$519,000
2004$477,500
2003$426,300
2002$426,300
2001$350,100
2000$319,700
1999$290,900
1998$255,500
1997$255,500
1996$243,300
1995$219,500
1994$215,200
1993$215,200
1992$237,200
Advertisement
Continue Reading Below

Where is 107 Oliver Rd, Newton MA located on map?

Market Activities

To date, we have no information about market activities in 2025
Jun 2022 Sold
107 Oliver Rd
Price history :
  • Single Family
  • 1,700 sqft
  • 3 beds
  • 2 baths

View more

Properties Nearby

Street Address
 

FAQ about the house at 107 Oliver Rd, Newton, MA

Advertisement

NOTICE: You may not use Homemetry or the information it provides to make decisions about employment, credit, housing or any other purpose that would require Fair Credit Reporting Act (FCRA) compliance. Homemetry is not a Consumer Reporting Agency (CRA) as defined by the FCRA and does not provide consumer reports.