11 Craigie Ter Newton, MA 02460 / 2106

Residence for Single Family

(UPDATED: 09/07/2025)
  • 4 Beds
  • 2 Baths
  • 4.188 square feet
Sold Feb 2022
$1,270,000
Property Report

Information about property on 11 Craigie Ter, Newton MA, 02460-2106. Find out owner contacts, building history, price, neighborhood at Homemetry Address Directory.

Property Details

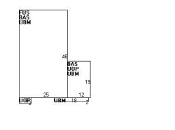
This property has more than forty-one hundred square feet of effective area and sits on 0,15 acres.

Facts

  • Built in 1928
  • Property use Two Family
  • Lot size 6,750 sqft
  • Effective area 4,188 sqft
  • Building type Residential
  • Rooms 11
  • Bedrooms 4
  • Stories 2
  • Exterior condition Average
  • Trim None
  • Foundation type Concrete
  • Roof material Asphalt Shingl
  • Fuel type Gas
  • Frontage 70 feet
  • Basement area 1,414 sqft
  • Porch area 246 sqft
  • Heating & Cooling
  • Heat type Hot Wtr Radiat
  • Exterior Home Features
  • Exterior walls Wood Shingle
  • Roof type Hip
Advertisement
Continue Reading Below

Householders and Tenants for 11 Craigie Ter, Newton MA

Businesses

Organization Phone Number Additional Info
Promotions In Motion
Industry:
Ret Groceries
11 Craigie Ter, Newton MA  02460-2106 plot plan 11 Craigie Ter, Newton MA  02460-2106 floor plan 11 Craigie Ter, Newton MA  02460-2106 aerial view

Cost estimate history

YearAssessment
2016 $654,300
2015 $611,500
2014 $586,500
2013 $586,500
2012 $586,500
2011 $594,400
2010 $606,500
2009 $638,400
2008 $638,400
2007 $655,400
2006$636,300
2005$617,800
2004$526,000
2003$461,400
2002$461,400
2001$410,100
2000$374,500
1999$340,800
1998$301,400
1997$276,500
1996$263,300
1995$252,900
1994$252,900
1993$252,900
1992$251,600
Advertisement
Continue Reading Below

Where is 11 Craigie Ter, Newton MA located on map?

Market Activities

To date, we have no information about market activities in 2025
Feb 2022 Sold
11 Craigie Ter
Price history :
  • Multi-Family
  • 6,534 sqft
  • 4 beds
  • 2 baths
Sep 2018 Sold
11 Craigie Ter
Price history :

View more

 

FAQ about the house at 11 Craigie Ter, Newton, MA

Advertisement

NOTICE: You may not use Homemetry or the information it provides to make decisions about employment, credit, housing or any other purpose that would require Fair Credit Reporting Act (FCRA) compliance. Homemetry is not a Consumer Reporting Agency (CRA) as defined by the FCRA and does not provide consumer reports.