115 Grasmere St Newton, MA 02458 / 2212

Residence for Single Family

(UPDATED: 09/07/2025)
  • 4 Beds
  • 2 Baths
  • 4.754 square feet
Sold Oct 2023
$1,560,000
Property Report

Information about property on 115 Grasmere St, Newton MA, 02458-2212. Find out owner contacts, building history, price, neighborhood at Homemetry Address Directory.

Property Details

This property with more than forty-two hundred square feet of effective area on 0,17 acres was developed in 1898.

Facts

  • Built in 1898
  • Property use Single Family
  • Lot size 7,197 sqft
  • Effective area 4,236 sqft
  • Gross building area 4,754 sqft
  • Building type Residential
  • Rooms 9
  • Bedrooms 4
  • Bathrooms 2
  • Stories 2,5
  • Exterior condition Average
  • Trim None
  • Foundation type Brick/Fldstone
  • Roof material Asphalt Shingl
  • Fuel type Oil
  • Air conditioning Central
  • Fireplaces 3
  • Frontage 59 feet
  • Basement area 1,180 sqft
  • Porch area 274 sqft
  • Heating & Cooling
  • Heat type Hot Wtr Radiat
  • Exterior Home Features
  • Exterior walls Wood Shingle
  • Roof type Gable
Advertisement
Continue Reading Below

Features

  • Kitchen quality: Good

Householders and Tenants for 115 Grasmere St, Newton MA

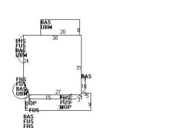
115 Grasmere St, Newton MA  02458-2212 plot plan 115 Grasmere St, Newton MA  02458-2212 floor plan 115 Grasmere St, Newton MA  02458-2212 aerial view

Cost estimate history

YearAssessment
2016 $1,123,100
2015 $1,049,600
2014 $919,800
2013 $741,000
2012 $741,000
2011 $738,800
2010 $753,900
2009 $769,300
2008 $769,300
2007 $807,700
2006$784,200
2005$746,900
2004$686,000
2003$612,500
2002$612,500
2001$509,600
2000$465,400
1999$423,500
1998$367,900
1997$342,200
1996$325,900
1995$278,700
1994$278,700
1993$278,700
1992$289,400
Advertisement
Continue Reading Below

Where is 115 Grasmere St, Newton MA located on map?

Market Activities

To date, we have no information about market activities in 2025
Oct 2023 Sold
115 Grasmere St
Price history :
  • Single Family
  • 2,782 sqft
  • 4 beds
  • 3 baths
Jun 2023 Sold
115 Grasmere St
Price history :
  • Single Family
  • 2,782 sqft
  • 4 beds
  • 3 baths

Grasmere St Incidents registered in FEMA
(Federal Emergency Management Agency)

To date, we have no information about incidents registered in FEMA in 2025
03 Dec 2005 Fuel burner/boiler malfunction, fire confined
Property Use —
1 or 2 family dwelling

Properties Nearby

Street Address
 

FAQ about the house at 115 Grasmere St, Newton, MA

Advertisement

NOTICE: You may not use Homemetry or the information it provides to make decisions about employment, credit, housing or any other purpose that would require Fair Credit Reporting Act (FCRA) compliance. Homemetry is not a Consumer Reporting Agency (CRA) as defined by the FCRA and does not provide consumer reports.