1301 Palmer St Philadelphia, PA 19125 / 3320

Residence for Single Family

(UPDATED: 08/06/2025)
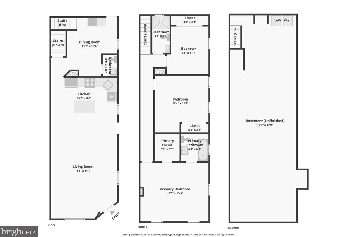
  • 4 Beds
  • 1 Baths
  • 1.232 square feet
Sold Jun 2023
$525,000
Property Report

Information about property on 1301 Palmer St, Philadelphia PA, 19125-3320. Find out owner contacts, building history, price, neighborhood at Homemetry Address Directory.

Property Details

The possession is placed down the street at 1301 Palmer St, Philadelphia, Pennsylvania.

Facts

  • Built in 1920
  • Lot size 1,232 sqft
  • Construction Masonry
  • Rooms 7
  • Bedrooms 4
  • Bathrooms 1
  • Stories 2 story with basement
  • Basement Full Basement
  • Exterior Home Features
  • Exterior material Brick
Advertisement
Continue Reading Below

Features

  • View: Territorial

Householders and Tenants for 1301 Palmer St, Philadelphia PA

Cost estimate history

YearTaxAssessmentMarket
2012 N/A $6,400 N/A
2011 N/A N/A N/A
2001 N/A N/A $20,000
Advertisement
Continue Reading Below

Where is 1301 Palmer St, Philadelphia PA located on map?

Market Activities

To date, we have no information about market activities in 2025
Jun 2023 Sold
1301 Palmer St
Price history :
  • Townhouse
  • 1,836 sqft
  • 3 beds
  • 3 baths
May 2023 Sold
1301 Palmer St
Price history :
  • Townhouse
  • 1,836 sqft
  • 3 beds
  • 3 baths

View more

Palmer St Fire Incident History

To date, we have no information about fire incidents in 2025
09 Mar 2019 Outside rubbish fire, other
Property Use —
Residential, other
Area of Origin —
Exterior, exposed surface
Heat Source —
Heat from other open flame or smoking materials
28 Jan 2018 Building fires
Property Use —
1 or 2 family dwelling
Area of Origin —
Function area, other
Heat Source —
Heat from powered equipment, other
13 Jun 2017 Fuel burner/boiler malfunction, fire confined
Property Use —
1 or 2 family dwelling
Area of Origin —
Function area, other
First Ignition —
Liquids, piping, filters, other
Heat Source —
Heat from powered equipment, other
31 Dec 2014 Outside rubbish, trash or waste fire
Property Use —
Open land or field
Area of Origin —
Outside area, other
First Ignition —
Rubbish, trash, or waste
Heat Source —
Flame/torch used for lighting

View more

Palmer St Incidents registered in FEMA
(Federal Emergency Management Agency)

To date, we have no information about incidents registered in FEMA in 2025
15 Oct 2015 Unauthorized burning
Property Use —
1 or 2 family dwelling
19 Jun 2015 Hazardous condition, other
Property Use —
Residential street, road or residential driveway
30 May 2015 Power line down
Property Use —
1 or 2 family dwelling
23 Apr 2015 Power line down
Property Use —
Residential street, road or residential driveway

View more

Properties Nearby

Street Address
150 Palmer St, Philadelphia, PA 19122-3219
Condo
  • 2 beds
  • 1 bath
  • 720 sqft
  • Built in 1915
170 Palmer St, Philadelphia, PA 19122-3219
Condo
  • 2 beds
  • 1 bath
  • 720 sqft
  • Built in 1915
1101 Palmer St, Philadelphia, PA 19125-4220
Single Family
  • 1 bed
  • 1 bath
  • Lot: 540 sqft
  • Built in 1915
1113 Palmer St, Philadelphia, PA 19125-4220
Single Family Residential
  • 3 beds
  • 1 bath
  • Lot: 1,665 sqft
  • Built in 1920
1253 Palmer St, Philadelphia, PA 19125-3327
Row house (Residential)
  • 2 beds
  • 2 baths
  • Lot: 1,194 sqft
  • Built in 1920
1311 Palmer St, Philadelphia, PA 19125-3320
Row house (Residential)
  • Lot: 1,872 sqft
  • Built in 1920
1404 Palmer St, Philadelphia, PA 19125-2607
Condo
  • 4 beds
  • 1 bath
  • 1,790 sqft
  • Built in 1943
1424 Palmer St, Philadelphia, PA 19125-2607
Single Family Residential
  • Lot: 2,917 sqft
  • Built in 1943
1505 Palmer St, Philadelphia, PA 19125-2608
Row house (Residential)
  • 3 beds
  • 1 bath
  • Lot: 1,020 sqft
  • Built in 1920
1551 Palmer St, Philadelphia, PA 19125-2620
Condo
  • 3 beds
  • 1 bath
  • Lot: 1,280 sqft
  • Built in 1965
 

FAQ about the house at 1301 Palmer St, Philadelphia, PA

Advertisement

NOTICE: You may not use Homemetry or the information it provides to make decisions about employment, credit, housing or any other purpose that would require Fair Credit Reporting Act (FCRA) compliance. Homemetry is not a Consumer Reporting Agency (CRA) as defined by the FCRA and does not provide consumer reports.