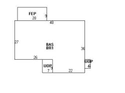
Cost estimate history
| Year | Assessment | ||
|---|---|---|---|
| 2016 | $571,600 | ||
| 2015 | $534,200 | ||
| 2014 | $508,000 | ||
| 2013 | $508,000 | ||
| 2012 | $505,400 | ||
| 2011 | $508,900 | ||
| 2010 | $519,300 | ||
| 2009 | $529,900 | ||
| 2008 | $529,900 | ||
| 2007 | $503,600 | ||
| 2006 | $488,900 | ||
| 2005 | $456,900 | ||
| 2004 | $430,600 | ||
| 2003 | $384,500 | ||
| 2002 | $384,500 | ||
| 2001 | $365,900 | ||
| 2000 | $334,200 | ||
| 1999 | $304,100 | ||
| 1998 | $268,000 | ||
| 1997 | $252,800 | ||
| 1996 | $240,800 | ||
| 1995 | $204,400 | ||
| 1994 | $200,400 | ||
| 1993 | $183,700 | ||
| 1992 | $204,800 |
Advertisement
Continue Reading Below
Building Permits
To date, we have no information about building permits in 2025
Mar 14, 2011
Description: Remodel bath & powder room on 1st flr
- Contractor: Robert J Nudelman
- Valuation: $2,800,000
- Fee: $520.80 paid to City of Newton, Massachusetts
- Parcel #: 42032 0070
- Permit #: 11030262
Cornell St Incidents registered in FEMA
(Federal Emergency Management Agency)
To date, we have no information about incidents registered in FEMA in 2025
29 Oct 2012
Hazardous condition, other
Property Use —
1 or 2 family dwelling
10 Apr 2003
Smoke detector activation, no fire - unintentional
Property Use —
1 or 2 family dwelling
Properties Nearby
| Street Address |
|---|
19 Cornell St, Newton, MA 02462-1107 Single Family
|
25 Cornell St, Newton, MA 02462-1107 Single Family
|
31 Cornell St, Newton, MA 02462-1107 Single Family
|
37 Cornell St, Newton, MA 02462-1107 Single Family
|
41 Cornell St, Newton, MA 02462-1107 Single Family
|


