21 Dorothy Rd, Newton MA  02459-3308 exterior

21 Dorothy Rd Newton, MA 02459 / 3308

Residence for Single Family

(UPDATED: 09/11/2025)
  • 4 Beds
  • 3 Baths
  • 7.218 square feet
Property Report

Information about property on 21 Dorothy Rd, Newton MA, 02459-3308. Find out owner contacts, building history, price, neighborhood at Homemetry Address Directory.

Property Details

Erected in 1953, this property has approximately seventy-two hundred square feet of effective area and sits on 0,43 acres.

Facts

  • Built in 1953
  • Property use Single Family
  • Lot size 18,836 sqft
  • Effective area 7,218 sqft
  • Building type Residential
  • Rooms 10
  • Bedrooms 4
  • Bathrooms 3
  • Exterior condition Average
  • Trim None
  • Foundation type Concrete
  • Roof material Asphalt Shingl
  • Fuel type Oil
  • Air conditioning Central
  • Fireplaces 2
  • Basement area 2,940 sqft
  • Porch area 120 sqft
  • Attached garage area 722 sqft
  • Heating & Cooling
  • Heat type Hot Water
  • Exterior Home Features
  • Exterior walls Brick Veneer
  • Roof type Gable
Advertisement
Continue Reading Below

Features

  • Kitchen quality: Above Average
  • Interior condition: Good

Householders and Tenants for 21 Dorothy Rd, Newton MA

Businesses

Organization Phone Number Additional Info
Kennedy Jack & Karen Realtors
617-965-****
Categories:
General Real Estate
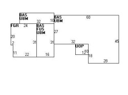
21 Dorothy Rd, Newton MA  02459-3308 plot plan 21 Dorothy Rd, Newton MA  02459-3308 floor plan 21 Dorothy Rd, Newton MA  02459-3308 aerial view

Purchase History

DateEventPriceSourceAgents
01/11/2002 Sold $500,000 Public records
04/05/2000 Sold $639,000 Public records

Cost estimate history

YearAssessment
2016 $926,200
2015 $865,600
2014 $814,600
2013 $814,600
2012 $814,600
2011 $806,700
2010 $823,200
2009 $840,000
2008 $840,000
2007 $959,800
2006$931,800
2005$887,400
2004$741,100
2003$661,700
2002$559,000
2001$590,400
2000$539,200
1999$490,600
1998$418,200
1997$418,200
1996$398,300
1995$365,100
1994$347,700
1993$347,700
1992$375,400
Advertisement
Continue Reading Below

Where is 21 Dorothy Rd, Newton MA located on map?

Properties Nearby

Street Address
7 Dorothy Rd, Newton, MA 02459-3308
Single Family
  • 4 beds
  • 3 baths
  • 6,250 sqft
  • Built in 1951
12 Dorothy Rd, Newton, MA 02459-3308
Single Family
  • 6 beds
  • 4.5 baths
  • 5,468 sqft
  • Built in 1955
20 Dorothy Rd, Newton, MA 02459-3308
Single Family
  • 3 beds
  • 2 baths
  • 4,012 sqft
  • Built in 1950
28 Dorothy Rd, Newton, MA 02459-3308
Single Family
  • 3 beds
  • 2.5 baths
  • 4,906 sqft
  • Built in 1953
34 Dorothy Rd, Newton, MA 02459-3308
Single Family
  • 6 beds
  • 5.5 baths
  • 7,832 sqft
  • Built in 2012
 

FAQ about the house at 21 Dorothy Rd, Newton, MA

Advertisement

NOTICE: You may not use Homemetry or the information it provides to make decisions about employment, credit, housing or any other purpose that would require Fair Credit Reporting Act (FCRA) compliance. Homemetry is not a Consumer Reporting Agency (CRA) as defined by the FCRA and does not provide consumer reports.