Advertisement
Continue Reading Below
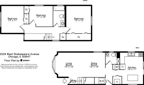
Market Activities
2529 Shakespeare Ave Fire Incident History
To date, we have no information about fire incidents in 2025
11 Dec 2010
Building fires
Property Use —
1 or 2 family dwelling
Area of Origin —
Closet
First Ignition —
Soft goods, wearing apparel, other
Heat Source —
Heat from powered equipment, other
Shakespeare Ave Fire Incident History
To date, we have no information about fire incidents in 2025
07 Jul 2014
Fires in structures other than in a building
Property Use —
Parking garage, (detached residential garage)
Area of Origin —
Chute/container - trash, rubbish, waste
First Ignition —
Multiple items first ignited
Heat Source —
Heat from other open flame or smoking materials
09 Jan 2014
Fire, other
Property Use —
1 or 2 family dwelling
Area of Origin —
Interior stairway or ramp
Heat Source —
Arcing
03 May 2013
Building fires
Property Use —
1 or 2 family dwelling
Area of Origin —
Ceiling & floor assembly, crawl space b/t stories
28 Jan 2013
Passenger vehicle fire
Property Use —
Residential street, road or residential driveway
Area of Origin —
Operator/passenger area of transportation equip.
2529 Shakespeare Ave incidents registered in FEMA
(Federal Emergency Management Agency)
To date, we have no information about incidents registered in FEMA in 2025
28 Dec 2010
Electrical wiring/equipment problem, other
Property Use —
Residential street, road or residential driveway
Shakespeare Ave Incidents registered in FEMA
(Federal Emergency Management Agency)
To date, we have no information about incidents registered in FEMA in 2025
17 Dec 2015
Oil or other combustible liquid spill
Property Use —
Street, other
04 Apr 2015
Trash or rubbish fire, contained
Property Use —
1 or 2 family dwelling
30 Mar 2015
Gas leak (natural gas or LPG)
Property Use —
Street or road in commercial area
22 Mar 2015
Cooking fire, confined to container
Property Use —
Multifamily dwellings
Properties Nearby
| Street Address |
|---|
2123 Shakespeare Ave, Chicago, IL 60647-3315 Multi-Family Home
|
2526 Shakespeare Ave, Chicago, IL 60647-4118 Multi-Family Home
|
3415 Shakespeare Ave, Chicago, IL 60647-3521 Multi-Family Home
|