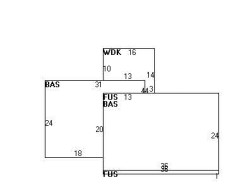
Cost estimate history
| Year | Assessment | ||
|---|---|---|---|
| 2016 | $581,900 | ||
| 2015 | $543,800 | ||
| 2014 | $523,400 | ||
| 2013 | $523,400 | ||
| 2012 | $523,400 | ||
| 2011 | $521,600 | ||
| 2010 | $532,200 | ||
| 2009 | $543,100 | ||
| 2008 | $543,100 | ||
| 2007 | $613,700 | ||
| 2006 | $595,800 | ||
| 2005 | $567,400 | ||
| 2004 | $491,000 | ||
| 2003 | $438,400 | ||
| 2002 | $438,400 | ||
| 2001 | $433,800 | ||
| 2000 | $396,200 | ||
| 1999 | $360,500 | ||
| 1998 | $274,500 | ||
| 1997 | $249,500 | ||
| 1996 | $249,500 | ||
| 1995 | $226,400 | ||
| 1994 | $213,600 | ||
| 1993 | $213,600 | ||
| 1992 | $254,100 |
Advertisement
Continue Reading Below
Building Permits
To date, we have no information about building permits in 2025
Jun 26, 2012
Description: (1) replacement siding door, no structural work
- Contractor: Pella Windows & Doors
- Valuation: $300,000
- Fee: $55.80 paid to City of Newton, Massachusetts
- Parcel #: 84011 0009
- Permit #: 12060681
Wiswall Rd Fire Incident History
To date, we have no information about fire incidents in 2025
01 Sep 2018
Grass fire
Property Use —
Open land or field
Area of Origin —
Outside area, other
First Ignition —
Light vegetation - not crop, including grass
Heat Source —
Hot ember or ash
20 Nov 2004
Building fires
Property Use —
1 or 2 family dwelling
Area of Origin —
Construction/renovation area
First Ignition —
Exterior wall covering or finish
Heat Source —
Chemical, natural heat source, other
Wiswall Rd Incidents registered in FEMA
(Federal Emergency Management Agency)
To date, we have no information about incidents registered in FEMA in 2025
20 Sep 2011
Carbon monoxide incident
Property Use —
1 or 2 family dwelling
13 Mar 2011
Dumpster or other outside trash receptacle fire
07 Jan 2009
Vehicle accident, general cleanup
Property Use —
Outside or special property, other
05 Oct 2008
Arcing, shorted electrical equipment
Property Use —
1 or 2 family dwelling
Properties Nearby
| Street Address |
|---|
25 Wiswall Rd, Newton, MA 02459-3535 Single Family
|
35 Wiswall Rd, Newton, MA 02459-3535 Single Family
|
36 Wiswall Rd, Newton, MA 02459-3511 Single Family
|


