30 Cannon St, Newton MA  02461-2115 exterior

30 Cannon St Newton, MA 02461 / 2115

Residence for Single Family

(UPDATED: 08/09/2025)
  • 3 Beds
  • 2 Baths
  • 3.497 square feet
Property Report

Information about property on 30 Cannon St, Newton MA, 02461-2115. Find out owner contacts, building history, price, neighborhood at Homemetry Address Directory.

Property Details

This property with 2,430 square feet of effective area on near a third of acre was built in the fifties.

Facts

  • Built in 1956
  • Property use Single Family
  • Lot size 15,248 sqft
  • Effective area 2,430 sqft
  • Gross building area 3,497 sqft
  • Building type Residential
  • Rooms 7
  • Bedrooms 3
  • Bathrooms 2
  • Stories 1
  • Exterior condition Average
  • Trim Full Wall
  • Foundation type Concrete
  • Roof material Asphalt Shingl
  • Fuel type Oil
  • Air conditioning Central
  • Frontage 103 feet
  • Basement area 1,511 sqft
  • Finished basement area 356 sqft
  • Deck area 156 sqft
  • Attached garage area 264 sqft
  • Heating & Cooling
  • Heat type Forced Air-Duc
  • Exterior Home Features
  • Exterior walls Aluminum Sidng
  • Roof type Gable
Advertisement
Continue Reading Below

Features

  • Kitchen quality: Above Average

Householders and Tenants for 30 Cannon St, Newton MA

Businesses

Organization Phone Number Additional Info
Melamed Yair MD
617-630-****
Categories:
Physicians & Surgeons
Vair Melamed MD
617-630-****
Categories:
Physicians & Surgeons
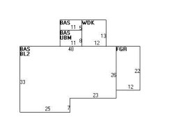
30 Cannon St, Newton MA  02461-2115 plot plan 30 Cannon St, Newton MA  02461-2115 floor plan 30 Cannon St, Newton MA  02461-2115 aerial view

Purchase History

DateEventPriceSourceAgents
12/30/1994 Sold $332,000 Public records

Cost estimate history

YearAssessment
2016 $766,000
2015 $715,900
2014 $684,300
2013 $684,300
2012 $684,300
2011 $689,000
2010 $703,100
2009 $717,400
2008 $717,400
2007 $751,300
2006$729,400
2005$694,700
2004$615,400
2003$549,500
2002$549,500
2001$460,000
2000$420,100
1999$382,300
1998$339,500
1997$339,500
1996$323,300
1995$279,400
1994$266,100
1993$251,000
1992$271,700
Advertisement
Continue Reading Below

Where is 30 Cannon St, Newton MA located on map?

Properties Nearby

Street Address
2 Cannon St, Newton, MA 02461-2115
Single Family
  • 4 beds
  • 1 bath
  • 3,954 sqft
  • Built in 1897
3 Cannon St, Newton, MA 02461-2115
Single Family
  • 4 beds
  • 1.5 baths
  • 2,982 sqft
  • Built in 1905
8 Cannon St, Newton, MA 02461-2115
Single Family
  • 4 beds
  • 2.5 baths
  • 4,037 sqft
  • Built in 1896
 

FAQ about the house at 30 Cannon St, Newton, MA

Advertisement

NOTICE: You may not use Homemetry or the information it provides to make decisions about employment, credit, housing or any other purpose that would require Fair Credit Reporting Act (FCRA) compliance. Homemetry is not a Consumer Reporting Agency (CRA) as defined by the FCRA and does not provide consumer reports.