31 Wade St, Newton MA  02461-1714 exterior

31 Wade St Newton, MA 02461 / 1714

Residence for Single Family

(UPDATED: 11/19/2025)
  • 4 Beds
  • 2 Baths
  • 3.456 square feet
Property Report

Information about property on 31 Wade St, Newton MA, 02461-1714. Find out owner contacts, building history, price, neighborhood at Homemetry Address Directory.

Property Details

This property with near thirty-five hundred square feet of effective area on 0,1 acres was originally built in the thirties.

Facts

  • Built in 1930
  • Property use Single Family
  • Lot size 4,500 sqft
  • Effective area 3,456 sqft
  • Building type Residential
  • Rooms 8
  • Bedrooms 4
  • Bathrooms 3
  • Stories 2
  • Exterior condition Average
  • Trim None
  • Foundation type Concrete
  • Roof material Asphalt Shingl
  • Fuel type Gas
  • Air conditioning Central
  • Frontage 45 feet
  • Basement area 1,152 sqft
  • Shed area 48 sqft
  • Heating & Cooling
  • Heat type Hot Water
  • Exterior Home Features
  • Exterior walls Vinyl Siding
  • Roof type Gable
Advertisement
Continue Reading Below

Features

  • Kitchen quality: Above Average

Householders and Tenants for 31 Wade St, Newton MA

Businesses

Organization Phone Number Additional Info
Lees Burger Brookline Inc
Industry:
Business Services at Non-Commercial Site
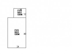
31 Wade St, Newton MA  02461-1714 plot plan 31 Wade St, Newton MA  02461-1714 floor plan 31 Wade St, Newton MA  02461-1714 aerial view

Purchase History

DateEventPriceSourceAgents
11/25/1997 Sold $200,000 Public records
01/18/1995 Sold $155,000 Public records

Cost estimate history

YearAssessment
2016 $572,800
2015 $535,300
2014 $605,100
2013 $605,100
2012 $605,100
2011 $601,700
2010 $614,000
2009 $626,500
2008 $626,500
2007 $638,100
2006$619,500
2005$590,000
2004$549,800
2003$490,900
2002$455,100
2001$226,100
2000$206,500
1999$187,900
1998$184,900
1997$174,400
1996$166,100
1995$159,400
1994$159,400
1993$159,400
1992$166,100
Advertisement
Continue Reading Below

Where is 31 Wade St, Newton MA located on map?

Properties Nearby

Street Address
 

FAQ about the house at 31 Wade St, Newton, MA

Advertisement

NOTICE: You may not use Homemetry or the information it provides to make decisions about employment, credit, housing or any other purpose that would require Fair Credit Reporting Act (FCRA) compliance. Homemetry is not a Consumer Reporting Agency (CRA) as defined by the FCRA and does not provide consumer reports.