33 Mosman St, Newton MA  02465-1303 exterior

33 Mosman St Newton, MA 02465 / 1303

Residence for Single Family

(UPDATED: 11/18/2025)
  • 3 Beds
  • 2 Baths
  • 8.145 square feet
Property Report

Information about property on 33 Mosman St, Newton MA, 02465-1303. Find out owner contacts, building history, price, neighborhood at Homemetry Address Directory.

Property Details

A single-family property at 33 Mosman St, Newton, MA.

Facts

  • Built in 1950
  • Property use Single Family
  • Lot size 8,145 sqft
  • Building type Residential
  • Rooms 7
  • Bedrooms 3
  • Bathrooms 2
  • Exterior condition Average
  • Trim Half Wall
  • Foundation type Slab
  • Roof material Asphalt Shingl
  • Fuel type Oil
  • Air conditioning Unit/AC
  • Frontage 77 feet
  • Shed area 140 sqft
  • Heating & Cooling
  • Heat type Hot Water
  • Exterior Home Features
  • Exterior walls Vinyl Siding
  • Roof type Gable
Advertisement
Continue Reading Below

Features

  • Kitchen quality: Below Average

Householders and Tenants for 33 Mosman St, Newton MA

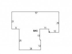
33 Mosman St, Newton MA  02465-1303 plot plan 33 Mosman St, Newton MA  02465-1303 floor plan 33 Mosman St, Newton MA  02465-1303 aerial view

Cost estimate history

YearAssessment
2016 $520,800
2015 $486,700
2014 $458,900
2013 $458,900
2012 $456,900
2011 $456,700
2010 $466,000
2009 $475,500
2008 $475,500
2007 $499,000
2006$484,500
2005$461,400
2004$418,300
2003$406,500
2002$374,000
2001$313,800
2000$286,600
1999$260,800
1998$232,000
1997$218,900
1996$208,500
1995$204,200
1994$200,200
1993$200,200
1992$212,800
Advertisement
Continue Reading Below

Where is 33 Mosman St, Newton MA located on map?

Properties Nearby

Street Address
 

FAQ about the house at 33 Mosman St, Newton, MA

Advertisement

NOTICE: You may not use Homemetry or the information it provides to make decisions about employment, credit, housing or any other purpose that would require Fair Credit Reporting Act (FCRA) compliance. Homemetry is not a Consumer Reporting Agency (CRA) as defined by the FCRA and does not provide consumer reports.