4 Applegarth St, Newton MA  02459-1111 exterior

4 Applegarth St Newton, MA 02459 / 1111

Residence for Single Family

(UPDATED: 10/16/2025)
  • 4 Beds
  • 1 Baths
  • 4.200 square feet
Property Report

Information about property on 4 Applegarth St, Newton MA, 02459-1111. Find out owner contacts, building history, price, neighborhood at Homemetry Address Directory.

Property Details

At 4 Applegarth Street, Newton, MA stands a property, which was built in 1920.

Facts

  • Built in 1920
  • Property use Single Family
  • Lot size 8,296 sqft
  • Effective area 3,953 sqft
  • Gross building area 4,200 sqft
  • Building type Residential
  • Rooms 8
  • Bedrooms 4
  • Bathrooms 1
  • Stories 2
  • Exterior condition Average
  • Trim None
  • Foundation type Concrete
  • Roof material Asphalt Shingl
  • Fuel type Oil
  • Air conditioning Central
  • Frontage 75 feet
  • Unfinished attic area 741 sqft
  • Basement area 1,008 sqft
  • Shed area 60 sqft
  • Porch area 80 sqft
  • Heating & Cooling
  • Heat type Hot Wtr Radiat
  • Exterior Home Features
  • Exterior walls Wood Shingle
  • Roof type Hip
Advertisement
Continue Reading Below

Householders and Tenants for 4 Applegarth St, Newton MA

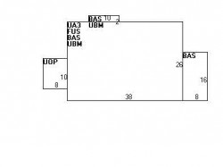
4 Applegarth St, Newton MA  02459-1111 plot plan 4 Applegarth St, Newton MA  02459-1111 floor plan 4 Applegarth St, Newton MA  02459-1111 aerial view

Purchase History

DateEventPriceSourceAgents
06/23/2003 Sold $735,500 Public records

Cost estimate history

YearAssessment
2016 $756,400
2015 $706,900
2014 $672,000
2013 $672,000
2012 $672,000
2011 $671,300
2010 $685,000
2009 $699,000
2008 $699,000
2007 $722,900
2006$701,800
2005$668,400
2004$609,500
2003$544,200
2002$544,200
2001$454,100
2000$414,700
1999$377,300
1998$345,400
1997$316,900
1996$301,800
1995$268,600
1994$268,600
1993$268,600
1992$279,100
Advertisement
Continue Reading Below

Where is 4 Applegarth St, Newton MA located on map?

Properties Nearby

Street Address
3 Applegarth St, Newton, MA 02459-1110
Single Family
  • 3 beds
  • 2.5 baths
  • 3,644 sqft
  • Built in 1925
9 Applegarth St, Newton, MA 02459-1110
Single Family
  • 4 beds
  • 2.5 baths
  • 3,267 sqft
  • Built in 1912
12 Applegarth St, Newton, MA 02459-1111
Single Family
  • 4 beds
  • 1.5 baths
  • 3,794 sqft
  • Built in 1925
19 Applegarth St, Newton, MA 02459-1110
Single Family
  • 3 beds
  • 2.5 baths
  • 4,188 sqft
  • Built in 1920
20 Applegarth St, Newton, MA 02459-1111
Single Family
  • 5 beds
  • 3 baths
  • 4,485 sqft
  • Built in 1928
 

FAQ about the house at 4 Applegarth St, Newton, MA

Advertisement

NOTICE: You may not use Homemetry or the information it provides to make decisions about employment, credit, housing or any other purpose that would require Fair Credit Reporting Act (FCRA) compliance. Homemetry is not a Consumer Reporting Agency (CRA) as defined by the FCRA and does not provide consumer reports.