40 Mosman St Newton, MA 02465 / 1303

Residence for Single Family

(UPDATED: 08/08/2025)
  • 4 Beds
  • 2 Baths
  • 1.920 square feet
Sold Mar 2021
$910,000
Property Report

Information about property on 40 Mosman St, Newton MA, 02465-1303. Find out owner contacts, building history, price, neighborhood at Homemetry Address Directory.

Property Details

At 40 Mosman Street, Newton, MA stands a property, which was built in 1952 and is positioned down the street.

Facts

  • Built in 1952
  • Property use Single Family
  • Lot size 10,160 sqft
  • Effective area 1,920 sqft
  • Building type Residential
  • Rooms 8
  • Bedrooms 4
  • Bathrooms 2
  • Stories 1
  • Exterior condition Average
  • Trim None
  • Foundation type Slab
  • Roof material Asphalt Shingl
  • Fuel type Oil
  • Air conditioning Unit/AC
  • Frontage 84 feet
  • Shed area 161 sqft
  • Porch area 168 sqft
  • Heating & Cooling
  • Heat type Radiant
  • Exterior Home Features
  • Exterior walls Brick Veneer
  • Roof type Hip
Advertisement
Continue Reading Below

Householders and Tenants for 40 Mosman St, Newton MA

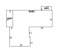
40 Mosman St, Newton MA  02465-1303 plot plan 40 Mosman St, Newton MA  02465-1303 floor plan 40 Mosman St, Newton MA  02465-1303 aerial view

Purchase History

DateEventPriceSourceAgents
10/03/2013 Sold $90,000 Public records
01/27/2000 Sold $156,000 Public records

Cost estimate history

YearAssessment
2016 $537,000
2015 $501,900
2014 $466,700
2013 $466,700
2012 $466,700
2011 $465,100
2010 $474,600
2009 $484,300
2008 $484,300
2007 $503,700
2006$489,000
2005$465,700
2004$418,000
2003$373,200
2002$373,200
2001$312,800
2000$285,700
1999$260,000
1998$233,500
1997$220,300
1996$209,800
1995$198,400
1994$198,400
1993$198,400
1992$210,900
Advertisement
Continue Reading Below

Where is 40 Mosman St, Newton MA located on map?

Market Activities

To date, we have no information about market activities in 2025
Mar 2021 Sold
40 Mosman St
Price history :
  • Single Family
  • 1,752 sqft
  • 4 beds
  • 2 baths

View more

Properties Nearby

Street Address
 

FAQ about the house at 40 Mosman St, Newton, MA

Advertisement

NOTICE: You may not use Homemetry or the information it provides to make decisions about employment, credit, housing or any other purpose that would require Fair Credit Reporting Act (FCRA) compliance. Homemetry is not a Consumer Reporting Agency (CRA) as defined by the FCRA and does not provide consumer reports.