4017 Hemlock St Milwaukee, WI 53209 / 1956

Residence for Single Family

(UPDATED: 12/29/2025)
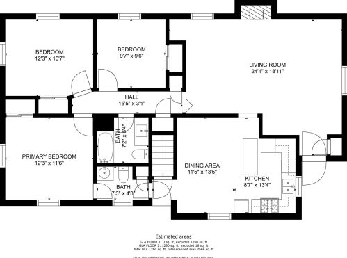
  • 3 Beds
  • 2 Baths
  • 0.27 acres
Sold Jul 2022
$195,000
Property Report

Information about property on 4017 Hemlock St, Milwaukee WI, 53209-1956. Find out owner contacts, building history, price, neighborhood at Homemetry Address Directory.

Property Details

As is shown in our records this property stands at 4017 Hemlock Street, Milwaukee, WI.

Facts

  • Built in 1963
  • Lot size 0,27 acres
  • Rooms 5
  • Bedrooms 3
  • Bathrooms 2
  • Stories 1 story with basement
  • Style Ranch/Rambler
  • Basement Full Basement
  • Air conditioning Central
  • Exterior Home Features
  • Exterior walls Siding (Alum/Vinyl)
  • Parking & Garage
  • Parking Detached Garage
Advertisement
Continue Reading Below

Listing info

  • Last sold Jul 1995 for $91,500

Features

  • Fireplace

Householders and Tenants for 4017 Hemlock St, Milwaukee WI

Cost estimate history

YearTaxAssessmentMarket
2014 $3,215 N/A N/A
2013 N/A $114,500 N/A
Advertisement
Continue Reading Below

Where is 4017 Hemlock St, Milwaukee WI located on map?

Market Activities

To date, we have no information about market activities in 2026
Jul 2022 Sold
4017 Hemlock St
Price history :
  • Single Family
  • 1,920 sqft
  • 3 beds
  • 3 baths
Jun 2022 Sold
4017 Hemlock St
Price history :
  • Single Family
  • 1,920 sqft
  • 3 beds
  • 3 baths

View more

Hemlock St Fire Incident History

To date, we have no information about fire incidents in 2026
21 Jul 2013 Fires in structures other than in a building
Property Use —
Manufacturing, processing
Area of Origin —
Open area - outside; included are farmland, field
Heat Source —
Hot or smoldering object, other
24 Dec 2010 Building fires
Property Use —
Manufacturing, processing
Area of Origin —
Processing/manufacturing area, workroom
Heat Source —
Hot or smoldering object, other
28 Jan 2010 Building fires
Property Use —
Manufacturing, processing
Area of Origin —
Machinery room or area; elevator machinery room
First Ignition —
Liquids, piping, filters, other
Heat Source —
Spark, ember or flame from operating equipment
23 Jan 2009 Dumpster or other outside trash receptacle fire
Property Use —
Vehicle parking area
Area of Origin —
Other

View more

Hemlock St Incidents registered in FEMA
(Federal Emergency Management Agency)

To date, we have no information about incidents registered in FEMA in 2026
29 Jun 2013 Power line down
Property Use —
Industrial plant yard - area
09 Oct 2000 False alarm or false call, other
Property Use —
Food and beverage sales, grocery store
31 Aug 2000 Local alarm system, malicious false alarm
Property Use —
1 or 2 family dwelling
28 Sep 1999 Smoke or odor removal
Property Use —
1 or 2 family dwelling

View more

Properties Nearby

Street Address
3819 Hemlock St, Milwaukee, WI 53209-1952
Single Family Residential
  • 4 beds
  • 1 bath
  • Lot: 0.3 acres
  • Built in 1958
3822 Hemlock St, Milwaukee, WI 53209-1953
Single Family Residential
  • 3 beds
  • 1 bath
  • Lot: 9,540 sqft
  • Built in 1956
3911 Hemlock St, Milwaukee, WI 53209-1954
Single Family Residential
  • 3 beds
  • 1 bath
  • Lot: 0.25 acres
  • Built in 1960
4001 Hemlock St, Milwaukee, WI 53209-1956
Single Family Residential
  • 4 beds
  • 3 baths
  • Lot: 0.26 acres
  • Built in 1976
4020 Hemlock St, Milwaukee, WI 53209-1957
Single Family Residential
  • 4 beds
  • 1 bath
  • Lot: 10,548 sqft
  • Built in 1966
4030 Hemlock St, Milwaukee, WI 53209-1957
Single Family Residential
  • 3 beds
  • 1 bath
  • Lot: 10,454 sqft
  • Built in 1963
4101 Hemlock St, Milwaukee, WI 53209-1958
Single Family Residential
  • 3 beds
  • 1 bath
  • Lot: 0.36 acres
  • Built in 1963
4109 Hemlock St, Milwaukee, WI 53209-1958
Single Family Residential
  • 3 beds
  • 1 bath
  • Lot: 10,479 sqft
  • Built in 1966
4130 Hemlock St, Milwaukee, WI 53209-1959
Single Family Residential
  • 3 beds
  • 1 bath
  • Lot: 8,877 sqft
  • Built in 1963
 

FAQ about the house at 4017 Hemlock St, Milwaukee, WI

Advertisement

NOTICE: You may not use Homemetry or the information it provides to make decisions about employment, credit, housing or any other purpose that would require Fair Credit Reporting Act (FCRA) compliance. Homemetry is not a Consumer Reporting Agency (CRA) as defined by the FCRA and does not provide consumer reports.