41 Wade St, Newton MA  02461-1714 exterior

41 Wade St Newton, MA 02461 / 1714

Residence for Single Family

(UPDATED: 10/09/2025)
  • 3 Beds
  • 1 Baths
  • 2.132 square feet
Property Report

Information about property on 41 Wade St, Newton MA, 02461-1714. Find out owner contacts, building history, price, neighborhood at Homemetry Address Directory.

Property Details

This is a single-family property, which is situated at 41 Wade Street, Newton, MA.

Facts

  • Built in 1930
  • Property use Single Family
  • Lot size 5,000 sqft
  • Effective area 2,132 sqft
  • Building type Residential
  • Rooms 6
  • Bedrooms 3
  • Stories 2
  • Exterior condition Average
  • Trim None
  • Foundation type Concrete
  • Roof material Asphalt Shingl
  • Fuel type Oil
  • Frontage 50 feet
  • Basement area 672 sqft
  • Porch area 84 sqft
  • Enclosed porch area 32 sqft
  • Heating & Cooling
  • Heat type Steam
  • Exterior Home Features
  • Exterior walls Vinyl Siding
  • Roof type Gable
Advertisement
Continue Reading Below

Features

  • Kitchen quality: Below Average

Householders and Tenants for 41 Wade St, Newton MA

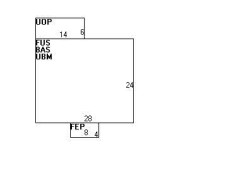
41 Wade St, Newton MA  02461-1714 plot plan 41 Wade St, Newton MA  02461-1714 floor plan 41 Wade St, Newton MA  02461-1714 aerial view

Cost estimate history

YearAssessment
2016 $437,400
2015 $408,800
2014 $391,700
2013 $391,700
2012 $391,700
2011 $392,200
2010 $400,200
2009 $408,400
2008 $408,400
2007 $426,100
2006$413,700
2005$394,000
2004$365,500
2003$326,300
2002$326,300
2001$264,800
2000$241,800
1999$220,000
1998$205,100
1997$193,500
1996$184,300
1995$175,800
1994$175,800
1993$175,800
1992$181,200
Advertisement
Continue Reading Below

Where is 41 Wade St, Newton MA located on map?

Properties Nearby

Street Address
 

FAQ about the house at 41 Wade St, Newton, MA

Advertisement

NOTICE: You may not use Homemetry or the information it provides to make decisions about employment, credit, housing or any other purpose that would require Fair Credit Reporting Act (FCRA) compliance. Homemetry is not a Consumer Reporting Agency (CRA) as defined by the FCRA and does not provide consumer reports.