53 Mosman St, Newton MA  02465-1303 exterior

53 Mosman St Newton, MA 02465 / 1303

Residence for Single Family

(UPDATED: 08/16/2025)
  • 3 Beds
  • 1 Baths
  • 1.740 square feet
Property Report

Information about property on 53 Mosman St, Newton MA, 02465-1303. Find out owner contacts, building history, price, neighborhood at Homemetry Address Directory.

Property Details

At 53 Mosman Street, Newton, MA there is a property, which was built in 1953 and is positioned down the street.

Facts

  • Built in 1953
  • Property use Single Family
  • Lot size 7,888 sqft
  • Effective area 1,740 sqft
  • Building type Residential
  • Rooms 6
  • Bedrooms 3
  • Stories 1
  • Exterior condition Average
  • Trim Half Wall
  • Foundation type Slab
  • Roof material Asphalt Shingl
  • Fuel type Oil
  • Air conditioning None
  • Frontage 76 feet
  • Enclosed porch area 168 sqft
  • Heating & Cooling
  • Heat type Hot Wtr Radiat
  • Exterior Home Features
  • Exterior walls Vinyl Siding
  • Roof type Hip
Advertisement
Continue Reading Below

Householders and Tenants for 53 Mosman St, Newton MA

Businesses

Organization Phone Number Additional Info
RONALD RUSSO FAMILY LLC
Type of Business:
Domestic Limited Liability Company
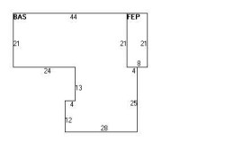
53 Mosman St, Newton MA  02465-1303 plot plan 53 Mosman St, Newton MA  02465-1303 floor plan 53 Mosman St, Newton MA  02465-1303 aerial view

Purchase History

DateEventPriceSourceAgents
07/27/2001 Sold $339,000 Public records
08/25/2000 Sold $331,000 Public records

Cost estimate history

YearAssessment
2016 $487,600
2015 $455,700
2014 $429,800
2013 $429,800
2012 $429,800
2011 $428,500
2010 $435,500
2009 $444,400
2008 $444,400
2007 $460,000
2006$446,600
2005$425,300
2004$383,400
2003$342,300
2002$342,300
2001$289,800
2000$264,700
1999$240,900
1998$214,900
1997$202,700
1996$193,000
1995$176,900
1994$176,900
1993$176,900
1992$188,300
Advertisement
Continue Reading Below

Where is 53 Mosman St, Newton MA located on map?

Properties Nearby

Street Address
 

FAQ about the house at 53 Mosman St, Newton, MA

Advertisement

NOTICE: You may not use Homemetry or the information it provides to make decisions about employment, credit, housing or any other purpose that would require Fair Credit Reporting Act (FCRA) compliance. Homemetry is not a Consumer Reporting Agency (CRA) as defined by the FCRA and does not provide consumer reports.