54 Bemis St, Newton MA  02460-1103 exterior

54 Bemis St Newton, MA 02460 / 1103

Residence for Single Family

(UPDATED: 07/21/2025)
  • 4 Beds
  • 1 Baths
  • 3.324 square feet
Property Report

Information about property on 54 Bemis St, Newton MA, 02460-1103. Find out owner contacts, building history, price, neighborhood at Homemetry Address Directory.

Property Details

At 54 Bemis Street, Newton, MA placed a single-family property.

Facts

  • Built in 1951
  • Property use Single Family
  • Lot size 9,000 sqft
  • Effective area 2,909 sqft
  • Gross building area 3,324 sqft
  • Building type Residential
  • Rooms 7
  • Bedrooms 4
  • Stories 1
  • Exterior condition Average
  • Trim None
  • Foundation type Concrete
  • Roof material Asphalt Shingl
  • Fuel type Oil
  • Frontage 90 feet
  • Basement area 1,662 sqft
  • Finished basement area 1,247 sqft
  • Basement garages 2
  • Heating & Cooling
  • Heat type Hot Wtr Radiat
  • Exterior Home Features
  • Exterior walls Brick Veneer
  • Roof type Gable
Advertisement
Continue Reading Below

Features

  • Kitchen quality: Below Average
  • Interior condition: Good

Householders and Tenants for 54 Bemis St, Newton MA

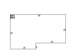
54 Bemis St, Newton MA  02460-1103 plot plan 54 Bemis St, Newton MA  02460-1103 floor plan 54 Bemis St, Newton MA  02460-1103 aerial view

Cost estimate history

YearAssessment
2016 $627,000
2015 $586,000
2014 $554,800
2013 $554,800
2012 $554,800
2011 $555,200
2010 $566,500
2009 $578,100
2008 $578,100
2007 $566,100
2006$549,600
2005$523,400
2004$445,400
2003$397,700
2002$397,700
2001$351,200
2000$320,700
1999$291,800
1998$273,200
1997$257,700
1996$245,400
1995$208,800
1994$204,700
1993$204,700
1992$221,700
Advertisement
Continue Reading Below

Where is 54 Bemis St, Newton MA located on map?

Properties Nearby

Street Address
 

FAQ about the house at 54 Bemis St, Newton, MA

Advertisement

NOTICE: You may not use Homemetry or the information it provides to make decisions about employment, credit, housing or any other purpose that would require Fair Credit Reporting Act (FCRA) compliance. Homemetry is not a Consumer Reporting Agency (CRA) as defined by the FCRA and does not provide consumer reports.