55 Grant St, Newton MA  02465-1508 exterior

55 Grant St Newton, MA 02465 / 1508

Residence for Single Family

(UPDATED: 08/15/2025)
  • 3 Beds
  • 2 Baths
  • 2.936 square feet
Property Report

Information about property on 55 Grant St, Newton MA, 02465-1508. Find out owner contacts, building history, price, neighborhood at Homemetry Address Directory.

Property Details

A single-family home at 55 Grant Street, Newton, MA.

Facts

  • Built in 1954
  • Property use Single Family
  • Lot size 6,750 sqft
  • Effective area 2,480 sqft
  • Gross building area 2,936 sqft
  • Building type Residential
  • Rooms 7
  • Bedrooms 3
  • Bathrooms 2
  • Stories 1,5
  • Exterior condition Average
  • Trim None
  • Foundation type Concrete
  • Roof material Asphalt Shingl
  • Fuel type Oil
  • Frontage 75 feet
  • Basement area 912 sqft
  • Porch area 100 sqft
  • Heating & Cooling
  • Heat type Hot Water
  • Exterior Home Features
  • Exterior walls Wood Shingle
  • Roof type Gable
Advertisement
Continue Reading Below

Householders and Tenants for 55 Grant St, Newton MA

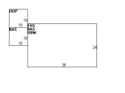
55 Grant St, Newton MA  02465-1508 plot plan 55 Grant St, Newton MA  02465-1508 floor plan 55 Grant St, Newton MA  02465-1508 aerial view

Cost estimate history

YearAssessment
2016 $475,500
2015 $444,400
2014 $421,100
2013 $421,100
2012 $421,100
2011 $427,500
2010 $436,200
2009 $445,100
2008 $445,100
2007 $447,900
2006$434,900
2005$414,200
2004$373,900
2003$333,800
2002$333,800
2001$279,900
2000$255,600
1999$232,600
1998$216,100
1997$204,800
1996$195,000
1995$181,100
1994$181,100
1993$181,100
1992$188,500
Advertisement
Continue Reading Below

Where is 55 Grant St, Newton MA located on map?

Properties Nearby

Street Address
9 Grant St, Newton, MA 02465-1508
Three Family
  • 6 beds
  • 3 baths
  • 4,100 sqft
  • Built in 1903
42 Grant St, Newton, MA 02465-1509
Single Family
  • 4 beds
  • 1.5 baths
  • 2,200 sqft
  • Built in 1955
45 Grant St, Newton, MA 02465-1508
Single Family
  • 3 beds
  • 2 baths
  • 2,018 sqft
  • Built in 1924
48 Grant St, Newton, MA 02465-1509
Single Family
  • 2 beds
  • 1 bath
  • 2,304 sqft
  • Built in 1945
52 Grant St, Newton, MA 02465-1509
Condominium (Residential)
  • 3 beds
  • 1 bath
  • Lot: 9,000 sqft
  • Built in 1995
54 Grant St, Newton, MA 02465-1509
Condominium (Residential)
  • 3 beds
  • 1 bath
  • Lot: 9,000 sqft
  • Built in 1995
 

FAQ about the house at 55 Grant St, Newton, MA

Advertisement

NOTICE: You may not use Homemetry or the information it provides to make decisions about employment, credit, housing or any other purpose that would require Fair Credit Reporting Act (FCRA) compliance. Homemetry is not a Consumer Reporting Agency (CRA) as defined by the FCRA and does not provide consumer reports.