Advertisement
Continue Reading Below
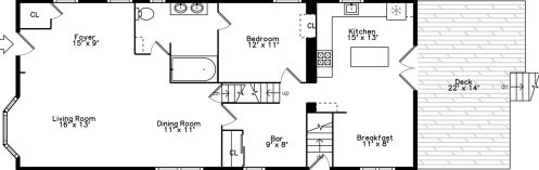
Market Activities
Cullom Ave Fire Incident History
To date, we have no information about fire incidents in 2025
22 Sep 2015
Building fires
Property Use —
1 or 2 family dwelling
Area of Origin —
Exterior balcony, unenclosed porch
18 Sep 2015
Passenger vehicle fire
Property Use —
Residential street, road or residential driveway
23 Aug 2015
Fires in structures other than in a building
Property Use —
Outside or special property, other
Area of Origin —
Chute/container - trash, rubbish, waste
First Ignition —
Rubbish, trash, or waste
Heat Source —
Hot ember or ash
26 Jun 2015
Fire, other
Property Use —
Multifamily dwellings
Cullom Ave Incidents registered in FEMA
(Federal Emergency Management Agency)
To date, we have no information about incidents registered in FEMA in 2025
22 Nov 2015
Electrical wiring/equipment problem, other
Property Use —
Schools, non-adult
14 Oct 2015
Outside rubbish fire, other
Property Use —
Residential street, road or residential driveway
14 Aug 2015
Carbon monoxide incident
Property Use —
Multifamily dwellings
05 Jul 2015
Trash or rubbish fire, contained
Property Use —
Street, other
Properties Nearby
| Street Address |
|---|
2224 Cullom Ave, Chicago, IL 60618-1614 Single Family
|
2536 Cullom Ave, Chicago, IL 60618-1502 Multi Family
|
5532 Cullom Ave, Chicago, IL 60641-1314 Single Family
|
5626 Cullom Ave, Chicago, IL 60634-1818 Single Family
|
5648 Cullom Ave, Chicago, IL 60634-1818 Single Family
|
5710 Cullom Ave, Chicago, IL 60634-1718 Single Family
|
5728 Cullom Ave, Chicago, IL 60634-1718 Single Family
|
5740 Cullom Ave, Chicago, IL 60634-1718 Single Family
|
5754 Cullom Ave, Chicago, IL 60634-1718 Single Family
|
5838 Cullom Ave, Chicago, IL 60634-1700 Single Family
|































