62 Lovett Rd, Newton MA  02459-3106 exterior

62 Lovett Rd Newton, MA 02459 / 3106

Residence for Single Family

(UPDATED: 09/12/2025)
  • 4 Beds
  • 2 Baths
  • 3.293 square feet
Property Report

Information about property on 62 Lovett Rd, Newton MA, 02459-3106. Find out owner contacts, building history, price, neighborhood at Homemetry Address Directory.

Property Details

At 62 Lovett Road, Newton, MA there is a single-family possession.

Facts

  • Built in 1967
  • Property use Single Family
  • Lot size 15,000 sqft
  • Effective area 2,133 sqft
  • Gross building area 3,293 sqft
  • Building type Residential
  • Rooms 9
  • Bedrooms 4
  • Stories 1
  • Exterior condition Average
  • Trim Half Wall
  • Foundation type Concrete
  • Roof material Asphalt Shingl
  • Fuel type Gas
  • Air conditioning Central
  • Frontage 100 feet
  • Basement area 1,547 sqft
  • Finished basement area 387 sqft
  • Porch area 55 sqft
  • Enclosed porch area 144 sqft
  • Basement garages 2
  • Heating & Cooling
  • Heat type Hot Water
  • Exterior Home Features
  • Exterior walls Wood Shingle
  • Roof type Gable
Advertisement
Continue Reading Below

Features

  • Kitchen quality: Above Average
  • Interior condition: Good

Householders and Tenants for 62 Lovett Rd, Newton MA

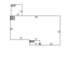
62 Lovett Rd, Newton MA  02459-3106 plot plan 62 Lovett Rd, Newton MA  02459-3106 floor plan 62 Lovett Rd, Newton MA  02459-3106 aerial view

Cost estimate history

YearAssessment
2016 $846,000
2015 $790,700
2014 $754,500
2013 $754,500
2012 $754,500
2011 $756,500
2010 $771,900
2009 $787,700
2008 $787,700
2007 $815,200
2006$791,500
2005$753,800
2004$708,000
2003$632,100
2002$632,100
2001$518,000
2000$473,100
1999$430,500
1998$378,500
1997$378,500
1996$360,500
1995$339,900
1994$323,700
1993$323,700
1992$330,000
Advertisement
Continue Reading Below

Where is 62 Lovett Rd, Newton MA located on map?

Properties Nearby

Street Address
5 Lovett Rd, Newton, MA 02459-3107
Single Family
  • 6 beds
  • 4 baths
  • 7,396 sqft
  • Built in 1978
8 Lovett Rd, Newton, MA 02459-3105
Single Family
  • 4 beds
  • 2.5 baths
  • 4,176 sqft
  • Built in 1960
 

FAQ about the house at 62 Lovett Rd, Newton, MA

Advertisement

NOTICE: You may not use Homemetry or the information it provides to make decisions about employment, credit, housing or any other purpose that would require Fair Credit Reporting Act (FCRA) compliance. Homemetry is not a Consumer Reporting Agency (CRA) as defined by the FCRA and does not provide consumer reports.