67 Mosman St Newton, MA 02465 / 1303

Residence for Single Family

(UPDATED: 09/02/2025)
  • 3 Beds
  • 2 Baths
  • 2.808 square feet
Sold Mar 2021
$910,000
Property Report

Information about property on 67 Mosman St, Newton MA, 02465-1303. Find out owner contacts, building history, price, neighborhood at Homemetry Address Directory.

Property Details

At 67 Mosman Street, Newton, MA placed a property, which was built in 1976 and is positioned at the end of the street.

Facts

  • Built in 1976
  • Property use Single Family
  • Lot size 10,280 sqft
  • Effective area 2,472 sqft
  • Gross building area 2,808 sqft
  • Building type Residential
  • Rooms 9
  • Bedrooms 3
  • Bathrooms 2
  • Stories 1
  • Exterior condition Average
  • Trim Two Wall
  • Foundation type Concrete
  • Roof material Asphalt Shingl
  • Fuel type Oil
  • Air conditioning Central
  • Frontage 84 feet
  • Basement area 1,344 sqft
  • Finished basement area 1,008 sqft
  • Shed area 126 sqft
  • Deck area 120 sqft
  • Heating & Cooling
  • Heat type Hot Water
  • Exterior Home Features
  • Exterior walls Vinyl Siding
  • Roof type Hip
Advertisement
Continue Reading Below

Householders and Tenants for 67 Mosman St, Newton MA

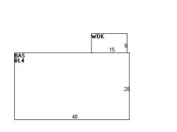
67 Mosman St, Newton MA  02465-1303 plot plan 67 Mosman St, Newton MA  02465-1303 floor plan 67 Mosman St, Newton MA  02465-1303 aerial view

Cost estimate history

YearAssessment
2016 $605,900
2015 $566,300
2014 $536,600
2013 $536,600
2012 $536,600
2011 $534,600
2010 $545,500
2009 $556,600
2008 $556,600
2007 $577,100
2006$560,300
2005$533,600
2004$493,900
2003$441,000
2002$441,000
2001$378,300
2000$345,500
1999$314,400
1998$302,600
1997$285,500
1996$271,900
1995$273,600
1994$260,600
1993$260,600
1992$276,600
Advertisement
Continue Reading Below

Where is 67 Mosman St, Newton MA located on map?

Market Activities

To date, we have no information about market activities in 2025
Mar 2021 Sold
67 Mosman St
Price history :
  • Single Family
  • 2,352 sqft
  • 4 beds
  • 3 baths

View more

Properties Nearby

Street Address
9 Mosman St, Newton, MA 02465-1303
Single Family
  • 3 beds
  • 1.5 baths
  • 1,750 sqft
  • Built in 1952
 

FAQ about the house at 67 Mosman St, Newton, MA

Advertisement

NOTICE: You may not use Homemetry or the information it provides to make decisions about employment, credit, housing or any other purpose that would require Fair Credit Reporting Act (FCRA) compliance. Homemetry is not a Consumer Reporting Agency (CRA) as defined by the FCRA and does not provide consumer reports.