68 Wade St, Newton MA  02461-1723 exterior

68 Wade St Newton, MA 02461 / 1723

Residence for Single Family

(UPDATED: 12/27/2025)
  • 3 Beds
  • 1 Baths
  • 2.115 square feet
Property Report

Information about property on 68 Wade St, Newton MA, 02461-1723. Find out owner contacts, building history, price, neighborhood at Homemetry Address Directory.

Property Details

A single-family estate at 68 Wade Street, Newton, MA.

Facts

  • Built in 1947
  • Property use Single Family
  • Lot size 5,475 sqft
  • Effective area 2,115 sqft
  • Building type Residential
  • Rooms 5
  • Bedrooms 3
  • Stories 1
  • Exterior condition Average
  • Trim None
  • Foundation type Concrete
  • Roof material Asphalt Shingl
  • Fuel type Gas
  • Air conditioning Unit/AC
  • Frontage 75 feet
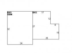
  • Basement area 768 sqft
  • Shed area 60 sqft
  • Heating & Cooling
  • Heat type Forced Air-Duc
  • Exterior Home Features
  • Exterior walls Wood on Sheath
  • Roof type Flat
Advertisement
Continue Reading Below

Features

  • Interior condition: Good

Householders and Tenants for 68 Wade St, Newton MA

68 Wade St, Newton MA  02461-1723 plot plan 68 Wade St, Newton MA  02461-1723 floor plan 68 Wade St, Newton MA  02461-1723 aerial view

Cost estimate history

YearAssessment
2016 $528,600
2015 $494,000
2014 $465,100
2013 $465,100
2012 $465,100
2011 $460,700
2010 $470,100
2009 $479,700
2008 $479,700
2007 $495,300
2006$480,900
2005$458,000
2004$428,200
2003$382,300
2002$382,300
2001$309,700
2000$282,800
1999$257,300
1998$217,900
1997$205,600
1996$195,800
1995$180,500
1994$180,500
1993$180,500
1992$191,800
Advertisement
Continue Reading Below

Where is 68 Wade St, Newton MA located on map?

Properties Nearby

Street Address
 

FAQ about the house at 68 Wade St, Newton, MA

Advertisement

NOTICE: You may not use Homemetry or the information it provides to make decisions about employment, credit, housing or any other purpose that would require Fair Credit Reporting Act (FCRA) compliance. Homemetry is not a Consumer Reporting Agency (CRA) as defined by the FCRA and does not provide consumer reports.