Purchase History
| Date | Event | Price | Source | Agents |
|---|---|---|---|---|
| 06/28/1991 | Sold | $440,000 | Public records |
Cost estimate history
| Year | Assessment | ||
|---|---|---|---|
| 2016 | $897,700 | ||
| 2015 | $839,000 | ||
| 2014 | $800,700 | ||
| 2013 | $800,700 | ||
| 2012 | $800,700 | ||
| 2011 | $800,300 | ||
| 2010 | $950,400 | ||
| 2009 | $969,800 | ||
| 2008 | $969,800 | ||
| 2007 | $987,200 | ||
| 2006 | $958,400 | ||
| 2005 | $912,800 | ||
| 2004 | $851,800 | ||
| 2003 | $760,500 | ||
| 2002 | $760,500 | ||
| 2001 | $641,800 | ||
| 2000 | $586,100 | ||
| 1999 | $533,300 | ||
| 1998 | $489,800 | ||
| 1997 | $449,400 | ||
| 1996 | $428,000 | ||
| 1995 | $404,800 | ||
| 1994 | $385,500 | ||
| 1993 | $385,500 | ||
| 1992 | $342,700 |
Advertisement
Continue Reading Below
Building Permits
To date, we have no information about building permits in 2025
Apr 22, 2015
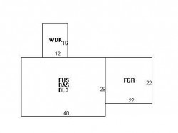
Description: Construct a 2story addition to enlarge kitchen and enlarge second floor master bath and closet; remove and install new kitchen cabinets
- Contractor: William G Foley
- Valuation: $18,700,000
- Fee: $3,478.20 paid to City of Newton, Massachusetts
- Parcel #: 22021 0039
- Permit #: 15040698
Kirkstall Rd Fire Incident History
To date, we have no information about fire incidents in 2025
06 Apr 2003
Building fires
Property Use —
1 or 2 family dwelling
Area of Origin —
Heating room or area, water heater area
First Ignition —
Atomized liquid, vaporized liquid, aerosol.
Heat Source —
Spark, ember or flame from operating equipment
Properties Nearby
| Street Address |
|---|
8 Kirkstall Rd, Newton, MA 02460-2218 Single Family
|
9 Kirkstall Rd, Newton, MA 02460-2217 Single Family
|
47 Kirkstall Rd, Newton, MA 02460-2244 Single Family
|
54 Kirkstall Rd, Newton, MA 02460-2218 Single Family
|


