9416 Trinity St, Detroit MI  48228-1581 exterior 9416 Trinity St, Detroit MI  48228-1581 exterior 9416 Trinity St, Detroit MI  48228-1581 exterior

9416 Trinity St Detroit, MI 48228 / 1581

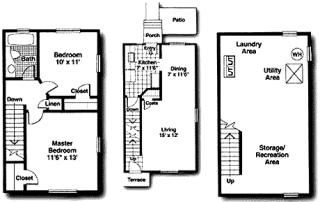
  • 2 Beds
  • 1 Baths
  • 1000 square feet
Property Report

Information about property on 9416 Trinity St, Detroit MI, 48228-1581. Find out owner contacts, building history, price, neighborhood at Homemetry Address Directory.

Property Details

A property at 9416 Trinity Street, Detroit, MI.

Advertisement
Continue Reading Below

Householders and Tenants for 9416 Trinity St, Detroit MI

Advertisement
Continue Reading Below

Where is 9416 Trinity St, Detroit MI located on map?

Market Activities

To date, we have no information about market activities in 2025
May 2016 Recent Rent
9416 Trinity St
Price history :
  • 1000 sqft
  • 2 beds
  • 1 bath

2 bed town home

View more

Trinity St Fire Incident History

To date, we have no information about fire incidents in 2025
25 Dec 2019 Passenger vehicle fire
Property Use —
Vehicle parking area
Area of Origin —
Fuel tank, fuel line
First Ignition —
Oily rags
Heat Source —
Match
20 Nov 2019 Building fires
Property Use —
1 or 2 family dwelling
Area of Origin —
Common room, den, family room, living room, lounge
15 Apr 2019 Building fires
Property Use —
1 or 2 family dwelling
Area of Origin —
Bedroom - 5+ persons; including barrack/dormitory
11 Apr 2019 Outside rubbish, trash or waste fire
Property Use —
1 or 2 family dwelling
Area of Origin —
Outside area, other
First Ignition —
Heavy vegetation - not crop, including trees
Heat Source —
Heat from direct flame, convection currents

View more

Trinity St Incidents registered in FEMA
(Federal Emergency Management Agency)

To date, we have no information about incidents registered in FEMA in 2025
14 Oct 2012 Power line down
Property Use —
Residential street, road or residential driveway
06 Oct 2012 Outside rubbish fire, other
Property Use —
1 or 2 family dwelling
02 Oct 2012 Arcing, shorted electrical equipment
Property Use —
1 or 2 family dwelling
03 Mar 2012 Power line down
Property Use —
Residential street, road or residential driveway

View more

 

FAQ about the house at 9416 Trinity St, Detroit, MI

Advertisement

NOTICE: You may not use Homemetry or the information it provides to make decisions about employment, credit, housing or any other purpose that would require Fair Credit Reporting Act (FCRA) compliance. Homemetry is not a Consumer Reporting Agency (CRA) as defined by the FCRA and does not provide consumer reports.