9712 La Salle St Chicago, IL 60628 / 1332

Residence for Single Family

(UPDATED: 09/23/2025)
  • 3 Beds
  • 1 Baths
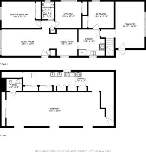
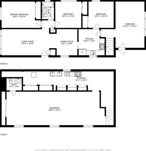
  • 3.720 square feet
Sold Sep 2023
$225,000
Property Report

Information about property on 9712 La Salle St, Chicago IL, 60628-1332. Find out owner contacts, building history, price, neighborhood at Homemetry Address Directory.

Property Details

This is a single-family one bungalow with an address at 9712 La Salle Street, Chicago, IL.

Facts

  • Built in 1960
  • Lot size 3,720 sqft
  • Construction Frame
  • Bedrooms 3
  • Stories 1 story with attic and basement
  • Basement Unfinished Basement
  • Foundation Slab
  • Structure type Bungalow
  • Exterior Home Features
  • Exterior material Wood
  • Roof type Shingle (Not Wood)
  • Parking & Garage
  • Parking Detached Garage
Advertisement
Continue Reading Below

Misc

  • Units 1

Householders and Tenants for 9712 La Salle St, Chicago IL

Cost estimate history

YearTaxAssessmentMarket
2013 $1,611 $11,467 N/A
Advertisement
Continue Reading Below

Where is 9712 La Salle St, Chicago IL located on map?

Market Activities

To date, we have no information about market activities in 2025
Sep 2023 Sold
9712 La Salle St
Price history :
  • Single Family
  • 1,800 sqft
  • 3 beds
  • 2 baths
Nov 2022 Sold
9712 La Salle St
Price history :
  • Single Family
  • 1,800 sqft
  • 3 beds
  • 2 baths
Jun 2022 Sold
9712 La Salle St
Price history :
  • Single Family
  • 1,800 sqft
  • 3 beds
  • 2 baths
Feb 2022 Sold
9712 La Salle St
Price history :
  • Single Family
  • 1,800 sqft
  • 3 beds
  • 2 baths

View more

La Salle St Fire Incident History

To date, we have no information about fire incidents in 2025
15 Dec 2015 Fire, other
Property Use —
1 or 2 family dwelling
Area of Origin —
Bedroom - < 5 persons; included are jail or prison
First Ignition —
Electrical wire, cable insulation
Heat Source —
Arcing
29 Nov 2015 Fire, other
Property Use —
1 or 2 family dwelling
Area of Origin —
Laundry area, wash house (laundry)
First Ignition —
Multiple items first ignited
Heat Source —
Heat source: other
21 Nov 2015 Building fires
Property Use —
Vehicle parking area
19 Oct 2015 Fire, other
Property Use —
1 or 2 family dwelling
Area of Origin —
Bedroom - < 5 persons; included are jail or prison

View more

Ln Salle St Incidents registered in FEMA
(Federal Emergency Management Agency)

To date, we have no information about incidents registered in FEMA in 2025
29 Dec 2015 Gas leak (natural gas or LPG)
Property Use —
Street, other
10 Nov 2015 Gas leak (natural gas or LPG)
Property Use —
1 or 2 family dwelling
06 Nov 2015 Gas leak (natural gas or LPG)
Property Use —
1 or 2 family dwelling
11 Oct 2015 Electrical wiring/equipment problem, other
Property Use —
1 or 2 family dwelling

View more

Properties Nearby

Street Address
8027 Ln Salle St, Chicago, IL 60620-1246
Single Family
  • 3 beds
  • 1 bath
  • Lot: 3,720 sqft
  • Built in 1917
8120 Ln Salle St, Chicago, IL 60620-1222
Single Family Residential
  • 3 beds
  • 1 bath
  • Lot: 3,270 sqft
  • Built in 1927
9313 Ln Salle St, Chicago, IL 60620-1414
Multi-Family Home
  • 1 bath
  • 756 sqft
  • Built in 1910
10720 Ln Salle St, Chicago, IL 60628-3425
Single Family Residential
  • 1 bed
  • 1 bath
  • Lot: 3,782 sqft
  • Built in 1911
11925 Ln Salle St, Chicago, IL 60628-6109
Single Family Residential
  • 2 beds
  • 1 bath
  • Lot: 3,000 sqft
  • Built in 1965
12230 Ln Salle St, Chicago, IL 60628-6821
Single Family Residential
  • 3 beds
  • 1 bath
  • Lot: 4,305 sqft
  • Built in 1957
12258 Ln Salle St, Chicago, IL 60628-6821
Single Family
  • 3 beds
  • 1.5 baths
  • 1,402 sqft
  • Built in 1953
13826 Ln Salle St, Chicago, IL 60827-1912
Multi-Family Home
  • 6 baths
  • Lot: 3,125 sqft
  • Built in 1961
 

FAQ about the house at 9712 Ln Salle St, Chicago, IL

Advertisement

NOTICE: You may not use Homemetry or the information it provides to make decisions about employment, credit, housing or any other purpose that would require Fair Credit Reporting Act (FCRA) compliance. Homemetry is not a Consumer Reporting Agency (CRA) as defined by the FCRA and does not provide consumer reports.