99 Bemis St, Newton MA  02460-1155 exterior

99 Bemis St Newton, MA 02460 / 1155

Residence for Single Family

(UPDATED: 09/23/2025)
  • 3 Beds
  • 1 Baths
  • 3.174 square feet
Property Report

Information about property on 99 Bemis St, Newton MA, 02460-1155. Find out owner contacts, building history, price, neighborhood at Homemetry Address Directory.

Property Details

This property with near twenty-eight hundred square feet of effective area was built in 1953.

Facts

  • Built in 1953
  • Property use Single Family
  • Lot size 10,440 sqft
  • Effective area 2,838 sqft
  • Gross building area 3,174 sqft
  • Building type Residential
  • Rooms 7
  • Bedrooms 3
  • Stories 1
  • Exterior condition Average
  • Trim None
  • Foundation type Concrete
  • Roof material Asphalt Shingl
  • Fuel type Oil
  • Air conditioning Central
  • Fireplaces 2
  • Frontage 105 feet
  • Basement area 1,344 sqft
  • Finished basement area 1,008 sqft
  • Shed area 30 sqft
  • Attached garage area 270 sqft
  • Heating & Cooling
  • Heat type Hot Wtr Radiat
  • Exterior Home Features
  • Exterior walls Brick Veneer
  • Roof type Gable
Advertisement
Continue Reading Below

Features

  • Kitchen quality: Above Average

Householders and Tenants for 99 Bemis St, Newton MA

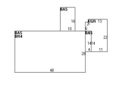
99 Bemis St, Newton MA  02460-1155 plot plan 99 Bemis St, Newton MA  02460-1155 floor plan 99 Bemis St, Newton MA  02460-1155 aerial view

Purchase History

DateEventPriceSourceAgents
06/19/2007 Sold $615,000 Public records

Cost estimate history

YearAssessment
2016 $597,800
2015 $558,700
2014 $528,300
2013 $528,300
2012 $528,300
2011 $525,900
2010 $536,600
2009 $547,600
2008 $547,600
2007 $549,900
2006$533,900
2005$508,500
2004$458,000
2003$408,900
2002$408,900
2001$366,900
2000$335,100
1999$304,900
1998$264,200
1997$269,200
1996$256,400
1995$196,000
1994$196,000
1993$196,000
1992$208,400
Advertisement
Continue Reading Below

Where is 99 Bemis St, Newton MA located on map?

Properties Nearby

Street Address
 

FAQ about the house at 99 Bemis St, Newton, MA

Advertisement

NOTICE: You may not use Homemetry or the information it provides to make decisions about employment, credit, housing or any other purpose that would require Fair Credit Reporting Act (FCRA) compliance. Homemetry is not a Consumer Reporting Agency (CRA) as defined by the FCRA and does not provide consumer reports.