Sold Nov 2022
$365,000
$365,000
Market Activities
To date, we have no information about market activities in 2025
Nov 2022
Sold
Feb 2022
Sold
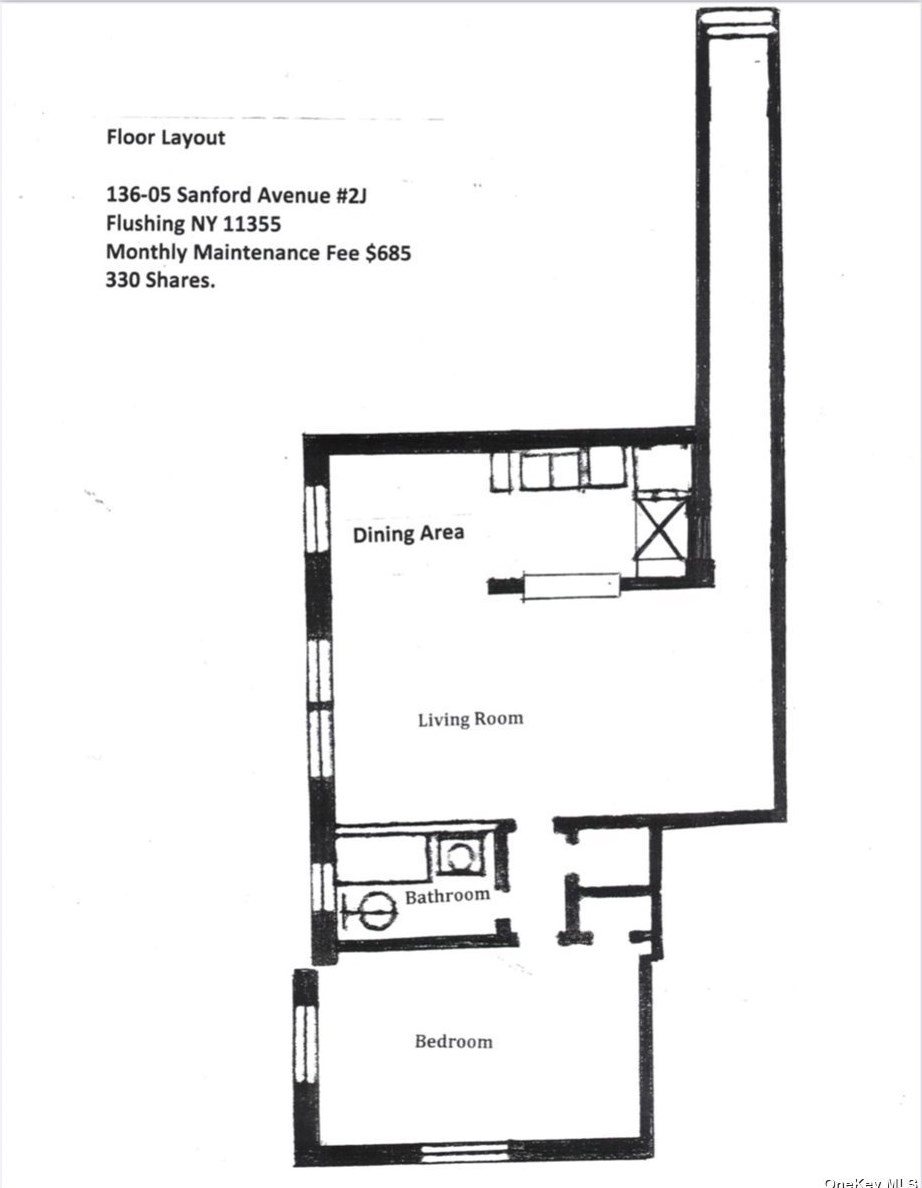
PUBLIC RECORDS for 13605 Sanford Ave, Flushing NY
‹
›
Facts
Built in 1929Bedrooms: 1Floor size: 750 sqftRoof type: OtherRooms: 3
Listing info
Last sold: Nov 2010 for $220,000
