Sold Oct 2023
$775,000
$775,000
Market Activities
To date, we have no information about market activities in 2025
Oct 2023
Sold
Mar 2023
Sold
Jun 2021
Sold
May 2021
Sold
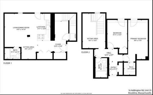
PUBLIC RECORDS for 16 Addington Rd, Brookline MA
Facts
Built in 1970Exterior material: BrickFloor size: 1,318 sqftBasement: Finished basementRooms: 5Heat type: OtherStories: 1
Features
DeckTransportationElevatorDishwasherPatioDryerPoolLaundry: In UnitTennis Court
Listing info
Last sold: Apr 2012 for $371,500
Other details
Units: 1
