330 198th St Bronx, NY 10458-3156

(UPDATED: 10/07/2024)
Property Detail Report View Neighbors
Advertisement
Continue Reading Below

Where is 330 198th St, Bronx NY located on map?

For Sale
$1,250,000
330 198th St, Bronx NY  10458-3156 exterior

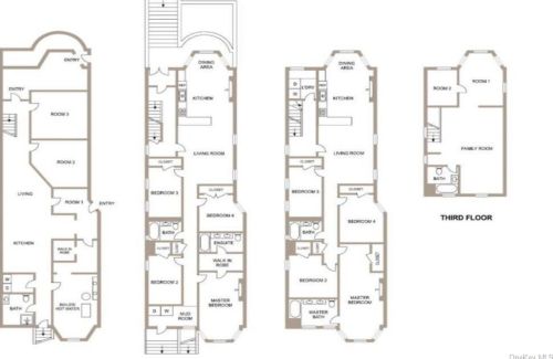
Property Details:

Bedrooms: 8Bathrooms: 5

Market Activities

To date, we have no information about market activities in 2025
Oct 2023 Sold
330 198th St #NA
Price history :
  • Multi-Family
  • 8 beds
  • 5 baths
Jan 2023 Sold
330 198th St #NA
Price history :
  • Multi-Family
  • 8 beds
  • 5 baths
Nov 2022 Sold
330 198th St #NA
Price history :
  • Multi-Family
  • 8 beds
  • 5 baths

View more

Advertisement

NOTICE: You may not use Homemetry or the information it provides to make decisions about employment, credit, housing or any other purpose that would require Fair Credit Reporting Act (FCRA) compliance. Homemetry is not a Consumer Reporting Agency (CRA) as defined by the FCRA and does not provide consumer reports.
Advertisement