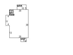
Cost estimate history
| Year | Assessment | ||
|---|---|---|---|
| 2016 | $387,800 | ||
| 2015 | $362,400 | ||
| 2014 | $347,200 | ||
| 2013 | $347,200 | ||
| 2012 | $347,200 | ||
| 2011 | $355,300 | ||
| 2010 | $362,600 | ||
| 2009 | $370,000 | ||
| 2008 | $370,000 | ||
| 2007 | $407,500 | ||
| 2006 | $395,600 | ||
| 2005 | $376,800 | ||
| 2004 | $311,900 | ||
| 2003 | $278,500 | ||
| 2002 | $278,500 | ||
| 2001 | $229,000 | ||
| 2000 | $209,100 | ||
| 1999 | $190,300 | ||
| 1998 | $164,400 | ||
| 1997 | $158,100 | ||
| 1996 | $158,100 | ||
| 1995 | $152,800 | ||
| 1994 | $152,800 | ||
| 1993 | $152,800 | ||
| 1992 | $167,300 |
Advertisement
Continue Reading Below
Market Activities
To date, we have no information about market activities in 2025
Sep 2023
Sold
Jun 2023
Sold
May 2023
Sold
May 2023
Sold
Wetherell St Incidents registered in FEMA
(Federal Emergency Management Agency)
To date, we have no information about incidents registered in FEMA in 2025
23 Sep 2003
Medical assist, assist EMS crew
Property Use —
Multifamily dwellings
Properties Nearby
| Street Address |
|---|


