255 Tremont St, Newton MA  02458-2111 exterior

255 Tremont St Newton, MA 02458 / 2111

(UPDATED: 08/03/2025)
Property Report

Information about property on 255 Tremont St, Newton MA, 02458-2111. Find out owner contacts, building history, price, neighborhood at Homemetry Address Directory.

Units

Property details of units in this apartment building

#257

  • 7,355 sqft
  • 6 beds
  • 2 baths
Multi-Family Home

Property Details

Put up in the thirties, this property has near fifty-four hundred square feet of effective area and sits on 0,17 acres.

Facts

  • Built in 1930
  • Property use Two Family
  • Lot size 7,355 sqft
  • Effective area 5,368 sqft
  • Building type Residential
  • Rooms 12
  • Bedrooms 6
  • Stories 2
  • Exterior condition Average
  • Trim None
  • Foundation type Concrete
  • Roof material Asphalt Shingl
  • Fuel type Oil
  • Air conditioning Central
  • Frontage 76 feet
  • Basement area 1,656 sqft
  • Enclosed porch area 224 sqft
  • Deck area 77 sqft
  • Heating & Cooling
  • Heat type Steam
  • Exterior Home Features
  • Exterior walls Wood Shingle
  • Roof type Hip
Advertisement
Continue Reading Below

Features

  • Kitchen quality: Above Average

Householders and Tenants for 255 Tremont St, Newton MA

Units - Who lives at 255 Tremont St, Newton MA

#257Multi-Family Home, 6 beds, 2 baths, 7,355 sqft 02458-2111
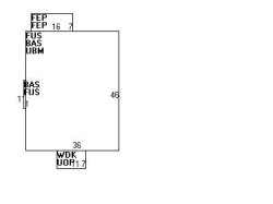
255 Tremont St, Newton MA  02458-2111 plot plan 255 Tremont St, Newton MA  02458-2111 floor plan 255 Tremont St, Newton MA  02458-2111 aerial view

Cost estimate history

YearAssessment
2016 $779,600
2015 $642,100
2014 $618,000
2013 $618,000
2012 $618,000
2011 $628,300
2010 $641,100
2009 $674,800
2008 $674,800
2007 $698,800
2006$678,400
2005$658,600
2004$557,100
2003$488,700
2002$488,700
2001$412,400
2000$376,600
1999$342,700
1998$302,600
1997$281,500
1996$268,100
1995$259,700
1994$273,400
1993$273,400
1992$278,200
Advertisement
Continue Reading Below

Where is 255 Tremont St, Newton MA located on map?

Market Activities

To date, we have no information about market activities in 2025
May 2016 Recent Rent
255 Tremont St
Price history :
  • 3 beds
  • 1.5 baths

This conveniently located 3 BR / 2.5 Bath unit is accessible within minutes to Boston (Backbay...

May 2016 Recent Rent
255 Tremont St
Price history :
  • 3 beds
  • 1.5 baths

This conveniently located 3 BR / 2.5 Bath unit is accessible within minutes to Boston (Backbay...

View more

Tremont St Fire Incident History

To date, we have no information about fire incidents in 2025
13 Feb 2015 Building fires
Property Use —
Multifamily dwellings
Area of Origin —
Ceiling & floor assembly, crawl space b/t stories
First Ignition —
Electrical wire, cable insulation
Heat Source —
Arcing
21 Feb 2004 Cooking fire, confined to container
Property Use —
1 or 2 family dwelling
Area of Origin —
Exterior balcony, unenclosed porch
First Ignition —
Flammable liquid/gas in container or pipe
Heat Source —
Spark, ember or flame from operating equipment

Tremont St Incidents registered in FEMA
(Federal Emergency Management Agency)

To date, we have no information about incidents registered in FEMA in 2025
21 Oct 2015 Gasoline or other flammable liquid spill
Property Use —
Multifamily dwellings
11 Oct 2015 Vehicle accident, general cleanup
Property Use —
1 or 2 family dwelling
14 Oct 2013 Fuel burner/boiler malfunction, fire confined
Property Use —
1 or 2 family dwelling
05 Apr 2011 Vehicle accident, general cleanup
Property Use —
Residential street, road or residential driveway

View more

Properties Nearby

Street Address
 

FAQ about the house at 255 Tremont St, Newton, MA

Advertisement

NOTICE: You may not use Homemetry or the information it provides to make decisions about employment, credit, housing or any other purpose that would require Fair Credit Reporting Act (FCRA) compliance. Homemetry is not a Consumer Reporting Agency (CRA) as defined by the FCRA and does not provide consumer reports.