31 Buswell Park, Newton MA  02458-2304 exterior

31 Buswell Park Newton, MA 02458 / 2304

Residence for Single Family

(UPDATED: 09/22/2025)
  • 3 Beds
  • 3 Baths
  • 4.080 square feet
Property Report

Information about property on 31 Buswell Park, Newton MA, 02458-2304. Find out owner contacts, building history, price, neighborhood at Homemetry Address Directory.

Property Details

This property with near thirty-five hundred square feet of effective area on 0,22 acres was originally built in the thirties.

Facts

  • Built in 1939
  • Property use Single Family
  • Lot size 9,504 sqft
  • Effective area 3,486 sqft
  • Gross building area 4,080 sqft
  • Building type Residential
  • Rooms 8
  • Bedrooms 4
  • Bathrooms 3
  • Stories 2
  • Exterior condition Good
  • Trim None
  • Foundation type Concrete
  • Roof material Asphalt Shingl
  • Fuel type Gas
  • Air conditioning Central
  • Frontage 50 feet
  • Unfinished attic area 396 sqft
  • Basement area 792 sqft
  • Finished basement area 594 sqft
  • Attached garage area 276 sqft
  • Heating & Cooling
  • Heat type Forced Air-Duc
  • Exterior Home Features
  • Exterior walls Wood Shingle
  • Roof type Gable
Advertisement
Continue Reading Below

Features

  • Kitchen quality: Above Average

Householders and Tenants for 31 Buswell Park, Newton MA

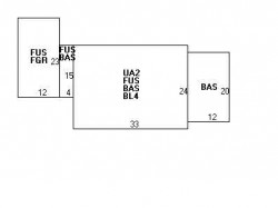
31 Buswell Park, Newton MA  02458-2304 plot plan 31 Buswell Park, Newton MA  02458-2304 floor plan 31 Buswell Park, Newton MA  02458-2304 aerial view

Purchase History

DateEventPriceSourceAgents
07/20/1993 Sold $399,000 Public records

Cost estimate history

YearAssessment
2016 $1,114,500
2015 $751,000
2014 $716,500
2013 $716,500
2012 $716,500
2011 $714,400
2010 $729,000
2009 $743,900
2008 $743,900
2007 $760,700
2006$738,500
2005$703,300
2004$661,400
2003$590,500
2002$590,500
2001$519,200
2000$474,200
1999$431,500
1998$413,300
1997$384,500
1996$366,200
1995$292,100
1994$292,100
1993$292,100
1992$281,300
Advertisement
Continue Reading Below

Where is 31 Buswell Park, Newton MA located on map?

Market Activities

To date, we have no information about market activities in 2025
Apr 2016 Sold
31 Buswell Park
Price history :
  • Single-Family Home
  • 3,010 sqft
  • 9,583 sqft
  • 4 beds
  • 3 baths

View more

Properties Nearby

Street Address
20 Buswell Park, Newton, MA 02458-2304
Single Family
  • 4 beds
  • 2 baths
  • 2,876 sqft
  • Built in 1920
23 Buswell Park, Newton, MA 02458-2304
Single Family
  • 3 beds
  • 1.5 baths
  • 3,217 sqft
  • Built in 1941
27 Buswell Park, Newton, MA 02458-2304
Single Family
  • 6 beds
  • 3.5 baths
  • 3,713 sqft
  • Built in 1940
28 Buswell Park, Newton, MA 02458-2304
Single Family
  • 3 beds
  • 1.5 baths
  • 3,032 sqft
  • Built in 1940
29 Buswell Park, Newton, MA 02458-2304
Single Family
  • 3 beds
  • 2 baths
  • 4,123 sqft
  • Built in 1940
35 Buswell Park, Newton, MA 02458-2304
Single Family
  • 3 beds
  • 2.5 baths
  • 3,084 sqft
  • Built in 1939
36 Buswell Park, Newton, MA 02458-2304
Single Family
  • 4 beds
  • 2.5 baths
  • 4,352 sqft
  • Built in 1938
 

FAQ about the house at 31 Buswell Park, Newton, MA

Advertisement

NOTICE: You may not use Homemetry or the information it provides to make decisions about employment, credit, housing or any other purpose that would require Fair Credit Reporting Act (FCRA) compliance. Homemetry is not a Consumer Reporting Agency (CRA) as defined by the FCRA and does not provide consumer reports.