4979 Austin Ave Chicago, IL 60638 / 1411

(UPDATED: 09/08/2025)
Sold Aug 2021
$433,000
Property Report

Information about property on 4979 Austin Ave, Chicago IL, 60638-1411. Find out owner contacts, building history, price, neighborhood at Homemetry Address Directory.

Units

Property details of units in this apartment building

#2

$2,199
For Rent
  • 3 beds
  • 1 bath
(Updated: 04/28/2024)

#1

  • 2 beds
  • 1 bath
Single Family

#2FL

Property Details

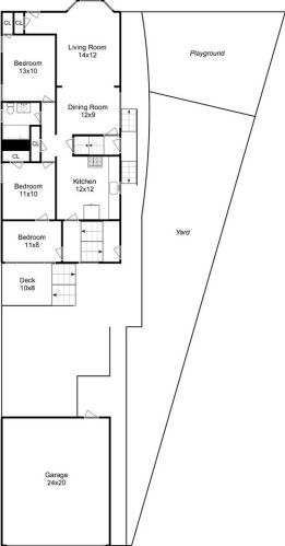
A single-family residence at 4979 Austin Ave, Chicago, IL.

Facts

  • Built in 1951
  • Lot size 5,899 sqft
  • Construction Masonry
  • Bedrooms 5
  • Bathrooms 2
  • Stories 1 story with attic and basement
  • Basement Unfinished Basement
  • Air conditioning Central
  • Exterior Home Features
  • Exterior material Brick
  • Roof type Shingle (Not Wood)
  • Parking & Garage
  • Parking Detached Garage
  • Parking spaces 1
Advertisement
Continue Reading Below

Listing info

  • Last sold Mar 2011 for $205,000

Householders and Tenants for 4979 Austin Ave, Chicago IL

Businesses

Organization Phone Number Additional Info
Zdenek Svoboda
Industry:
Single-Family House Construction

Units - Who lives at 4979 Austin Ave, Chicago IL

#23 beds, 1 bath 60638-1411
#12 beds, 1 bath 60638-1411
#2FLAnna T Piorkowski 60638-1411

Purchase History

DateEventPriceSourceAgents
03/23/2011 Sold $205,000 Public records
04/09/2004 Sold $340,000 Public records

Cost estimate history

YearTaxAssessmentMarket
2012 $6,610 $39,300 N/A
Advertisement
Continue Reading Below

Where is 4979 Austin Ave, Chicago IL located on map?

Market Activities

To date, we have no information about market activities in 2025
Apr 2024 Listed for rent
4979 Austin Ave #2
Price history :
  • Rental
  • 3 beds
  • 1 bath
Aug 2021 Sold
4979 Austin Ave
Price history :
  • Single Family
  • 2,700 sqft
  • 6 beds
  • 3 baths
Jun 2021 Sold
4979 Austin Ave
Price history :
  • Single Family
  • 2,700 sqft
  • 6 beds
  • 3 baths

View more

Austin Ave Fire Incident History

To date, we have no information about fire incidents in 2025
10 Dec 2015 Mobile property (vehicle) fire, other
Property Use —
Street, other
09 Nov 2015 Fire, other
Property Use —
Multifamily dwellings
Area of Origin —
Laundry area, wash house (laundry)
First Ignition —
Dust, fiber, lint, including sawdust and excelsior
Heat Source —
Radiated, conducted heat from operating equipment
31 Aug 2015 Mobile property (vehicle) fire, other
Property Use —
Street, other
Area of Origin —
Outside area, other
First Ignition —
Tire
Heat Source —
Spark, ember or flame from operating equipment
04 Jul 2015 Outside storage fire
Property Use —
Parking garage, (detached residential garage)
Area of Origin —
Vehicle storage area; garage, carport
First Ignition —
Furniture, utensils, other
Heat Source —
Fireworks

View more

Austin Ave Incidents registered in FEMA
(Federal Emergency Management Agency)

To date, we have no information about incidents registered in FEMA in 2025
30 Dec 2015 Carbon monoxide incident
Property Use —
Multifamily dwellings
10 Dec 2015 Carbon monoxide incident
Property Use —
1 or 2 family dwelling
06 Dec 2015 Outside rubbish, trash or waste fire
Property Use —
1 or 2 family dwelling
06 Dec 2015 Vehicle accident, general cleanup
Property Use —
Residential street, road or residential driveway

View more

Properties Nearby

Street Address
4947 Austin Ave, Chicago, IL 60638-1411
Single Family Residential
  • 2 beds
  • 1 bath
  • Lot: 4,340 sqft
  • Built in 1958
4953 Austin Ave, Chicago, IL 60638-1411
Single Family Residential
  • 2 beds
  • 1 bath
  • Lot: 4,132 sqft
  • Built in 1942
4956 Austin Ave, Chicago, IL 60638-1412
Single Family Residential
  • 2 beds
  • 1 bath
  • Lot: 4,302 sqft
  • Built in 1956
4957 Austin Ave, Chicago, IL 60638-1411
Single Family Residential
  • 3 beds
  • 2 baths
  • Lot: 4,132 sqft
  • Built in 1942
4965 Austin Ave, Chicago, IL 60638-1411
Single Family Residential
  • 3 beds
  • 1 bath
  • Lot: 4,526 sqft
  • Built in 1948
5000 Austin Ave, Chicago, IL 60630-1943
Multi-Family Home
  • 8 beds
  • 4 baths
  • Lot: 5,380 sqft
  • Built in 1957
 

FAQ about the house at 4979 Austin Ave, Chicago, IL

Advertisement

NOTICE: You may not use Homemetry or the information it provides to make decisions about employment, credit, housing or any other purpose that would require Fair Credit Reporting Act (FCRA) compliance. Homemetry is not a Consumer Reporting Agency (CRA) as defined by the FCRA and does not provide consumer reports.